With residences starting for sale at $4.7 million, the city is reviewing an application to build-out the shell space for a penthouse at the Four Seasons Hotel and Private Residences at an estimated $3 million.
That indicates a potential total cost of close to $8 million, although that’s a rough estimate because unit prices will depend on the individual sale of each of the 26 private residences and the final build-out investment in each.
Four of the residences at the Downtown riverfront project are penthouses, likely on the higher side of the starting price.
Jacksonville Jaguars owner Shad Khan leads the development of the residences and the hotel, targeted for completion June 30, 2027.

The Northbank project at 1406 E. Bay St. is near EverBank Stadium, which is under renovation as the Jaguars’ “Stadium of the Future.”
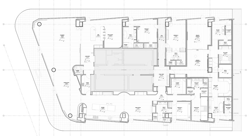
No owner is identified for the 7,325-square-foot custom residence referred to as the seventh-level south unit. It is called PH4, indicating it is one of four penthouses.
Jacksonville Jaguars Business Communications Director Lyndsay Rossman said Dec. 8 that the permit refers to a private sale that hasn’t closed.
A project description says it is an interior renovation “to prepare for new owners.”
The property owner is listed as Four Seasons Unit PH4 LLC, managed by Contega Business Services LLC of Jacksonville.
No sale has been recorded with the Duval County Clerk of Courts for that name.
Contega Executive Vice President Steve Diebenow, a partner with Driver, McAfee, Hawthorne & Diebenow, responded Dec. 8 to an email for comment that he can’t say who is the owner of the PH4 unit.
State corporate records show that Four Seasons Unit PH4 LLC was filed with the Florida Division of Corporations on Nov. 12.

Plans indicate a dining room, kitchen, pantry, family room, gathering room, bar, wine lounge, a primary bedroom with a sitting room and separate his and her bathrooms and closets, three more bedrooms with bathrooms, and a bunk room with its own bathroom, as well as a laundry area. There are separate entries for guests and for family.
Morales Construction Co. Inc. of Jacksonville is the contractor. Greg Matthews Studio of Bozeman, Montana, is the architect. Stephanie Jarvis Inc. of Jacksonville is the interior designer.
Meskel & Associates Engineering PLLC is providing private plan review.
The residences
Rossman said the 170-room hotel and the 26 residences are in separate wings of the angled building.
The 10-floor east wing is the hotel.
The nine-floor west wing is home to the residences, which have higher ceilings than the hotel rooms. All nine floors have residences.

Asked how many are signed for residences, Rossman said information regarding contracts is confidential.
“More information will be available once we officially announce our sales launch publicly in early 2026,” she said.
The JacksonvillePrivateResidences.com site link says the luxury residences start at $4.7 million, which Rossman confirmed.
The site says Douglas Elliman is the exclusive sales and marketing firm. The elliman.com site says the 26 residences are priced from $4.72 million. The size ranges from two to five bedrooms and 2.5 to 4.5 bedrooms.
The Douglas Elliman Inc. real estate firm is based in New York City.

JacksonvillePrivateResidences.com says the Four Seasons Private Residences “provide a rare opportunity to live in the most remarkable settings and exclusive communities, with world-class service and amenities at your doorstep.”

“Four Seasons Hotel and Private Residences Jacksonville offers an immersive, timeless experience, exceeding expectations. Whether for a day or a lifetime, the Khan family invites you to experience relentless excellence and unparalleled luxury,” says the site, quoting Shad Khan’s daughter, Shanna Khan, who is identified as president and chief design officer of Iguana Investments.
The site refers to Iguana Investments as “A Khan Family Company.”
Iguana Investments is Shad Khan’s real estate development company, which is building the hotel and adjacent One Shipyards Place office building.
For the residences, the site says interior design is the forefront.
“Floor-to-ceiling windows let in light that amplifies the organic, natural palette inside. Sculptural details create an elegant, serene feel, from the curved edge of the fireplace to a stonework vanity that appears to float against the bathroom wall.”

Four Seasons Hotel and Private Residences Jacksonville amenities will include four dining and lounge outlets, a rooftop restaurant and bar, a pool bar and grill and a lobby bar, all of which will be open to hotel guests and the public.
The hotel will have a full-service spa, multiple outdoor pools with cabana service, a fully equipped gym and meeting and event space.
The 10th floor features a rooftop restaurant that FourSeasons.com magazine says will showcase “modern Japanese cuisine and enviable panoramic views, and for an all-day dining option, the Italian osteria will serve artisan flatbreads, house-made pastas and wood-fired signature dishes. Residents will also be able to mingle over small plates or at the full-service bar in the lobby lounge.”
The site said that the residences will be 1,930 to 7,500 square feet. It says terraces “extend the living space outdoors, where owners can enjoy uninterrupted views of the river and skyline.”

Residences will have access to private amenities, including a lounge with an interactive multisports simulator.
Next door to the hotel, a six-story office building, where the Jaguars will move its team headquarters into three floors, is expected to be completed in the first quarter of 2026.
The cost for the vertical construction of the office building and hotel totals $254.3 million, growing to almost $260 million with a marina support building on the grounds.
PCL Construction Services Inc. is the contractor for the buildings.
Increased incentives
In January 2023, Jacksonville City Council approved a revised $129.75 million incentives deal with Iguana Investments for the Four Seasons Hotel and Residences and the One Shipyards Place office building, now called Tower Court and marketed by the NAI Hallmark real estate company.
The city will provide an additional $6 million in tax breaks after City Council action Nov. 25.

Council voted to increase the limit of a 20-year, 75% Recapture Enhanced Value Grant for the development to $56.58 million from $50.58 million. The vote came on Ordinance 2025-0815.
A REV grant is a refund on ad valorem tax revenue generated by a new development or property enhancement. It can apply to property and tangible personal property.
The increase would support traffic-calming improvements to Bay Street to increase safety for motorists and pedestrians, according to a Downtown Investment Authority staff memo, which says Iguana Investments has undertaken the road project.

According to DIA records, Iguana obtained a $3 million commitment from the state of Florida for the first phase of the traffic-calming project. Because the work involves city property, the city REV grant would cover the entire $6 million cost of the first phase if the state fails to follow through on its commitment.
The REV grant would be reduced if the state provides all or some of the money it has committed.
The ordinance also reflected an increase in Iguana Investments’ minimum capital investment in the project to $373.96 million from $334.55 million. The developer’s minimum direct investment also will climb to $321.35 million from $281.94 million.
Iguana said the project’s estimated cost had risen about 20.75% since 2021, climbing to $387.6 million from $321 million, attributing the added investment to rising costs of construction, changes in design of the hotel and other factors.
Additionally, the legislation extends the required completion date for the Four Seasons by one year to June 30, 2027.
The deadline for completion of the adjacent marina, bulkhead improvements, Riverwalk improvements and construction of a marina support building would be extended two months to Aug. 30, 2026.
Council also enacted an ordinance to rename the street from East Bay Street to the St. Johns River from Shipyards Place to Tower Court.