A day after announcing Nov. 10 it will open in Jacksonville, Harris Teeter filed permit applications with the city to build a supermarket and a liquor store in the Atlantic North shopping center in East Arlington.
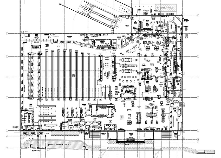
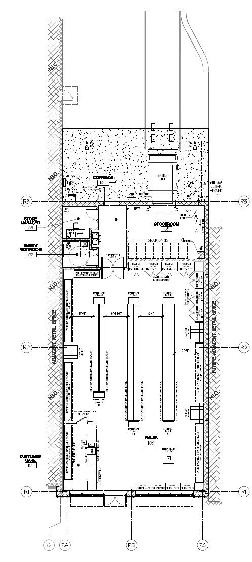
No contractor is specified for the applications, shown at a project cost of $3 million for the 61,000-square-foot space for the supermarket and $1 million for the adjacent 3,010-square-foot liquor store.
Harris Teeter, based in Matthews, North Carolina, intends to build the stores on a site it agreed to lease at 11901 Atlantic Blvd. at northwest Kernan and Atlantic boulevards.

The company expects to start construction in spring 2026 and will hire 100 to 200 employees. Jacksonville-based Sleiman Enterprises is the landlord.
An opening date has not been announced.
The stores, called Unit 400, will be developed on grassed land between LA Fitness and Academy Sports + Outdoors.

Bondurant Associates Engineering Architecture of Portsmouth, Virginia, is the applicant.
Harris Teeter also announced it will build a fuel center, but that permit application has not been created yet. Plans show it will be south of Atlantic Boulevard across the street from the shopping center.
Store features
Harris Teeter’s features will include a pharmacy with a drive-thru pickup window as well as grocery departments such as the cheese island and a center-store wine bar with bar and table seating.
A subsidiary of The Kroger Co. based in Cincinnati, Harris Teeter, with the tagline Your Neighborhood Market, announced it will open five stores in the next couple of years in new markets, including one in North Carolina and three in South Carolina.

Harris Teeter said it employs about 36,000 people in more than 250 stores and 85 fuel centers in North Carolina, South Carolina, Virginia, Georgia, Maryland, Delaware, Florida and the District of Columbia.
It will be the second Harris Teeter operating in Northeast Florida, joining the Fernandina Beach location in Nassau County.
The Atlantic North store also marks a return to the area after two Harris Teeter stores closed about 20 years ago in Duval and St. Johns counties. That was before Kroger bought the company.

Harris Teeter said the expansion extends the company’s reach “to serve more neighbors across the Southeast,” said Danna Robinson, director of corporate affairs and customer relations.
The company offers its VIC card loyalty program. It said each store will establish partnerships with local food banks “to address food insecurity and ensure neighbors have access to nutritious meals.”
Will have a wine and beer bar
Harris Teeter said the store will include a full-service wine and beer bar; Starbucks Coffee shop; and Harris Teeter Pick Up.
It will feature a new décor package; expanded produce and meat and seafood departments; a full-service floral department; an expanded deli and bakery department to include fresh pizza; a Murray’s Cheese island; an Asian hot bar; and convenient meal solutions, fresh cakes and a bread program.

Harris Teeter has been known in the market for more than 20 years, although it closed a store in Mandarin in 2004 and in Ponte Vedra Beach in 2006.
Kroger bought Harris Teeter Supermarkets in January 2014.

Kroger has been making inroads into Florida.
The Kroger Co. has established a delivery network in the state, including Northeast Florida, and launched home delivery in 2021. It rolled out Kroger Logistics with a hub in Groveland in Central Florida and spoke locations, including in North Jacksonville. It has not opened any Kroger-branded stores in the state.
More appear to be in store
A second potential site for Harris Teeter is in SilverLeaf in St. Johns County.
An unidentified 61,000-square-foot grocery store matching the footprint of Harris Teeter is planned as the anchor of a shopping center at northeast County Road 16A and SilverLeaf Parkway in the SilverLeaf community.
There is no confirmation that the store is Harris Teeter.

“Harris Teeter is focused on the development and opening of its store in Jacksonville, Fla. In keeping with company policy, we only speak to locations where we are currently operating a store or have executed a lease for a future site,” the company said in a statement Nov. 10.
On Nov. 6, the St. Johns County Planning and Zoning Agency voted to recommend approval of a minor modification to the SilverLeaf Planned Unit Development zoning to allow the store.
The modification also would allow an affiliated liquor store and outparcels designed for restaurant tenants to sell alcohol within 270 feet of the Episcopal Church in the Diocese of Florida instead of the required 1,000 feet.
St. Augustine-based The Hutson Co., through White’s Ford Timber LLC, owns the property. Ellen Avery-Smith of the Jacksonville-based Rogers Towers law firm represents the project. England-Thims & Miller Inc. of Jacksonville is the civil engineer.
Hutson representatives and Avery-Smith decline to comment if Harris Teeter is the planned SilverLeaf grocery store.