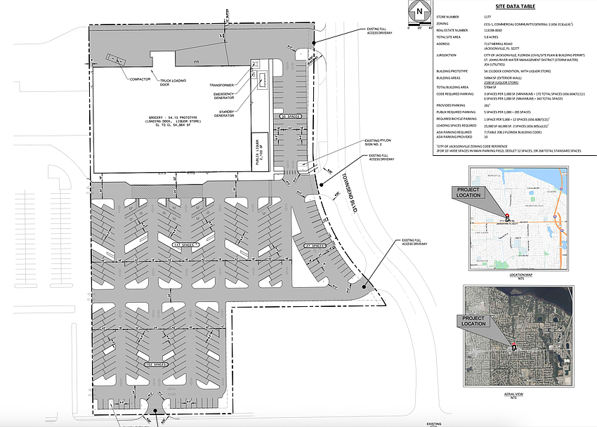
Publix Super Markets Inc. is exploring the demolition and reconstruction of its Old Arlington neighborhood grocery store at 7117 Merrill Road, at northwest Merrill Road and Townsend Boulevard.
City utility JEA is reviewing a service availability determination request for the project, described as razing the 58,528-square-foot grocery store and replacing it with a new 54,964-square-foot supermarket at Dames Pointe Plaza.
Edwards Engineering Inc. of Jacksonville is the applicant.

A JEA request means a project is under consideration.
A master site plan with the request shows Publix also will rebuild an adjacent 2,100-square-foot liquor store, creating a 57,064-square-foot project. The
Duval County Property Appraiser records show the store was built in 1975.
Lakeland-based Publix bought the property, on 5.79 acres, in 2007 from Jacksonville-based Rowe’s Enterprises LLC.
Rowe’s operated a store there after buying the former Albertsons supermarket in 2005.
Publix regularly remodels its stores and has demolished and rebuilt several of its supermarkets in the Northeast Florida market.
