Publix Super Markets Inc. wants to expand an existing freezer warehouse in West Jacksonville at a project cost of $35 million, according to city permitting in review.
Plans show that Publix wants to make two additions of 41,205 square feet of produce space, which would operate at 35 degrees, and 15,391 square feet for boxed meat at 28 degrees.
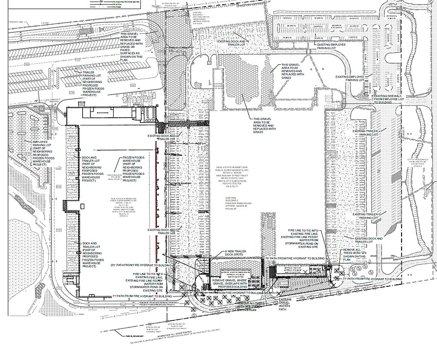
The additions are in design for a 443,534-square-foot freezer warehouse at Publix’s distribution center at 9800 W. Beaver St., between West Beaver Street and Interstate 95.
The city issued a site-clearing permit for the project Oct. 20 and is reviewing the foundation permit. All three permits are shown at $35 million, indicating that is the total cost.
Gray Construction Inc. of Lexington, Kentucky, is the contractor. Gray AES is the architect. Dyer+ Associates LLC of Richmond, Kentucky, is the civil engineer.

The project comes as Lakeland-based Publix develops a frozen foods warehouse on land it owns at 10132 General Ave. adjacent to its distribution complex.
Publix is building a 370,000-square-foot freezer building on 42.4 acres. Permits issued for that project total almost $145 million.
Gray Construction Inc., Gray AES and Dyer & Associates LLC are working on that project, too.
Publix began developing the 127-acre West Beaver Street site in 1971. Buildings were added since then and now they total more than 950,000 square feet.
The structures include warehousing, distribution, refrigerated warehouses, offices and other functions.
That size increases to about 1.35 million square feet with the new warehouse.

The city signed off on incentives in November 2023. City Council unanimously approved a Recapture Enhanced Value Grant up to $3.5 million for the frozen foods warehouse, code-named Project Willow.
The grant represents 50% of the new city ad valorem tax anticipated to be generated by the project over a term of five years.
Publix said in April 2024 that the new frozen foods warehouse was targeted to open in late 2027 and hire about 150 people.
“It will add capacity to our distribution network and primarily serve Central and North Florida, and southern Alabama, Georgia and South Carolina,” said Publix Media Relations Manager Hannah Herring.
While not identified as Publix, the city incentives legislation said the recipient of the property tax refund is a locally established regional food retailer that wishes to expand its distribution support operations to accommodate continued growth to serve customers in the Southeastern U.S., according to records filed by the city Office of Economic Development.
The expansion outlined in the ordinance included development of a 300,000-square-foot cold-storage facility with a capital investment of about $150 million for construction and equipment.
The ordinance said the company will maintain its current level of jobs and add 150 jobs with a $7.5 million annual payroll combined with “offering substantial benefits” by Dec. 31, 2027.
A report presented with the proposal by the Council Auditor’s Office indicated the JEA issued a service availability letter Aug. 28, 2023, for Publix to build a 400,000-square-foot warehouse for frozen foods storage on 37.15 acres along General Avenue.