The city is reviewing civil engineering plans for Gateway Jax’s Publix-anchored mixed-use tower on the site of the former First Baptist Church main auditorium.
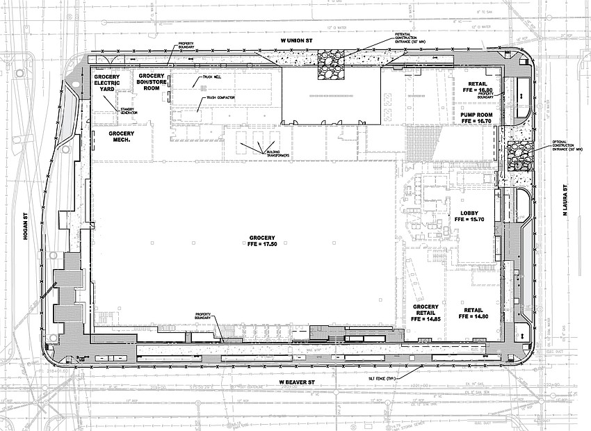
Plans for the $147.95 million project at 119 W. Beaver St. include residential units, a parking garage and ground-floor commercial space. Site improvements include demolition of existing structures, construction of new buildings and the redesign of the surrounding sidewalk.
Chicago-based SCB is the architect, with OJB Landsape Architecture of Boston the landscape architect.
In December 2025, the Downtown Investment Authority voted 9-0 in favor of a resolution that would provide $49.66 million in public incentives for the proposed 14-story tower. With approval by Jacksonville City Council, the incentives would comprise a 75, 17-year Recapture Enhanced Value Grant of up to $21.41 million and a $28.25 million completion grant.
Gateway Jax plans to demolish the auditorium to make way for the tower.
Under a term sheet for the proposed redevelopment agreement between the city and Gateway, the tower would include 21 studio units, 207 one-bedroom units and 31 two-bedroom units. A minimum of 37,000 square feet of retail space would be required.

Gateway Jax says the Publix is a cornerstone of its Pearl Square district, the $750 million-plus, nine-block development under construction in the NorthCore area of Downtown north and west of City Hall.
If fully built, the district would include more than 2 million square feet of new construction and adaptive reuse Downtown.
The proposed completion grant for the N7 project is facing Council scrutiny, with some members expressing concerns that the city has overcommitted on the incentives.

Unlike REV Grants, which essentially are tax rebates, the city draws from its general budget to pay for completion grants.
With commitments coming due for such projects as the Four Seasons Hotel and Private Residences, the Related Group’s South Bank Residences and other Gateway Jax projects, some Council members are seeking ways to reduce or eliminate completion grants. Those members cite concerns that the grants threaten to exacerbate projected deficits in the city budget.
A leading voice on that front is Council member Will Lahnen, who said he is hoping the Block N7 completion grant can be replaced by REV Grants.
He said the city is facing a projected $80 million cumulative deficit over four years, which is likely to increase with upcoming negotiations with unions representing city employees.

Of that $80 million, he said, about $75 million is due to completion grants awarded to Downtown projects over several years.
“Nearly $40 million of these are for the Gateway N4, N5, N8 and N11 projects which have not been completed yet,” he said, referring to block numbers for elements of Pearl Square.
Other Council members say the city needs to continue investing public dollars into Downtown to maintain the momentum that has built up in recent years with completion of city riverfront park projects, and progress on Pearl Square and other private projects.
Corner Lot and JWB Real Estate Capital bought the 103,016-square-foot First Baptist auditorium and adjoining parking garage as a joint venture in 2022.
That same year, the two companies spent nearly $750,000 to prepare the auditorium for “Beyond Van Gogh: The Immersive Experience.” The space, which was renamed the NoCo Center, later hosted the “Beyond King Tut” exhibit.
Property records show 712 Hogan Street North LLC bought the auditorium for $2.3 million through 119 Beaver Street West LLC and paid $6.09 million for the adjoining parking garage.
State records list Gateway Jax CEO Bryan Moll as a title member of 119 Beaver St W LLC.