With a site-work permit issued Oct. 7 for $1 million, Shores Fine Wine & Spirits has applied to the city for approvals to demolish the closed Wendy’s in the Girvin area followed by new construction at $2.21 million.
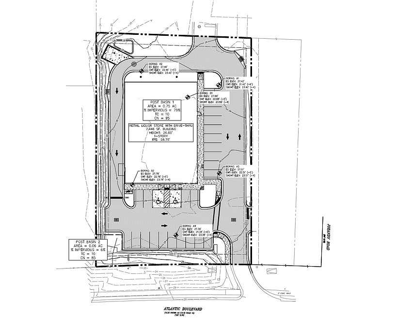
Shores FWS #22 Inc. owns the 0.82-acre site at 12911 Atlantic Blvd., at northeast Atlantic Boulevard and Girvin Road in East Arlington. It is in front of the Lowe’s Home Improvement store.
Shores applied for a permit to demolish the 3,098-square-foot closed Wendy’s fast-food restaurant that was built in 2003. The demolition has a project cost of $35,000.

It also applied for construction of a 7,446-square-foot Shores Fine Wine & Spirits store and drive-thru at $2.2 million and a dumpster enclosure at $12,500.
Avant Construction Group of Jacksonville is the contractor.
Kimley-Horn and Associates Inc. is the civil engineer.
Privately owned Shores Fine Wine & Spirits is based in Jacksonville.

ShoresLiquor.com shows 20 locations in Northeast Florida, with the two closest to the Wendy’s site being 14376 Beach Blvd., at southeast San Pablo Road and Beach Boulevard, and 909 Arlington Road N. at northeast Arlington Expressway and Arlington Road.
Shores Fine Wine & Spirits paid $2.125 million for the Girvin property June 5, 2025, from JFCF Investments One LLC of New Jersey.