Beachwalk AutoZone planned

The retailer is the latest addition announced for the St. Johns County community.


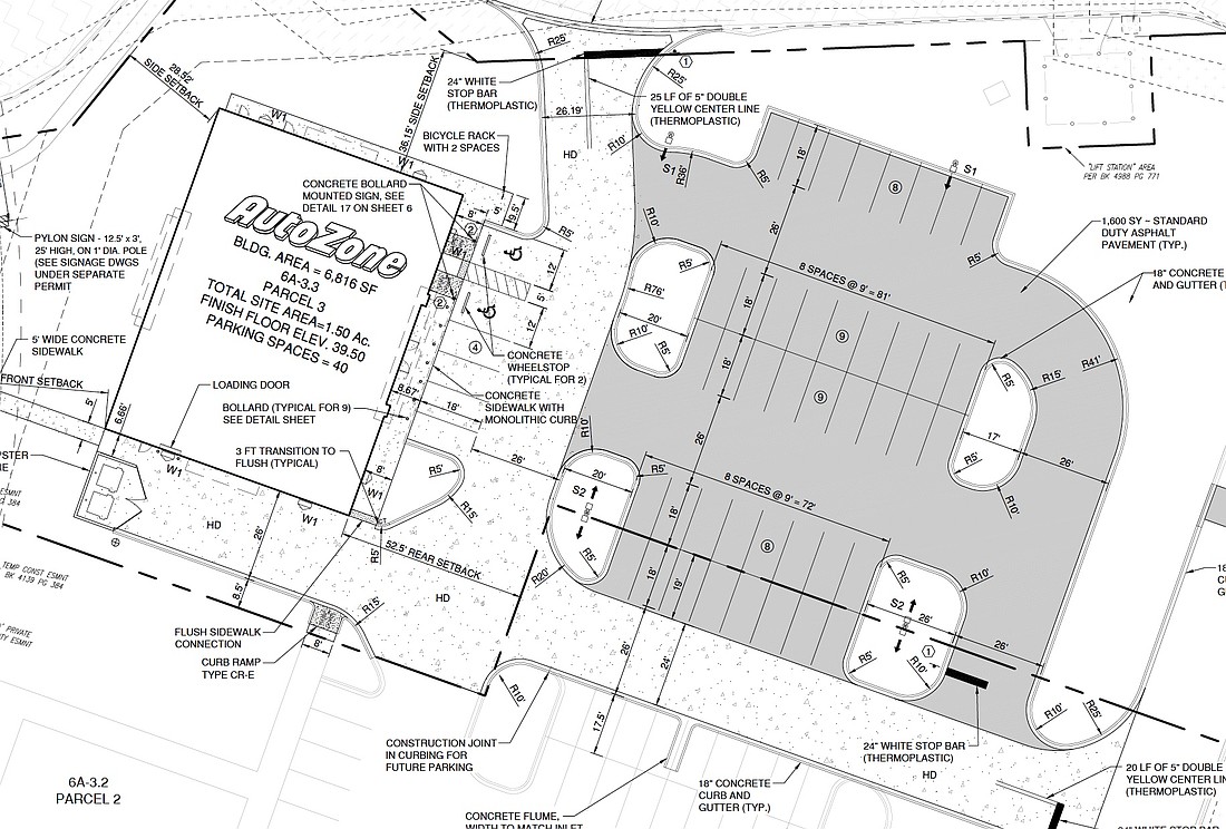
AutoZone Auto Parts plans a 6,816-square-foot store in the Beachwalk master-planned community, about 2 miles east of Interstate 95.
AutoZone Auto Parts plans a 6,816-square-foot store in the Beachwalk master-planned community, about 2 miles east of Interstate 95.
Photo by AutoZone
  • Business
  • Share

AutoZone Auto Parts intends to build a 6,816-square-foot store in the Beachwalk master-planned community, according to plans under review in St. Johns County.

The auto parts store is the latest proposed addition to the community at County Road 210 and Beacon Lake Parkway, about 2 miles east of Interstate 95. 

Nevin Engineering Services of St. Augustine is named as the civil engineer. The property is owned by Boca Raton-based PEBB Enterprises through 4th Avenue Partners LLC. 

The county Development Review Committee is expected to discuss the project April 15 as the first step toward permitting.

AutoZone operates more than 7,710 stores globally, according to its website, and is expanding elsewhere in St. Johns County, with another store permitted Feb. 2 in the RiverTown community at a project cost of $1,702,591. That community is near the St. Johns River northwest of Florida 13 and Old County Road 210. 

Beachwalk, developed by Falcone Group beginning in 2017, includes residential neighborhoods, commercial developments, grocery stores, several restaurants and a 13.92-acre recreational lagoon. Planned projects include a Compass Hotel by Margaritaville and a 6,542-square-foot restaurant that has not been identified.

 

Sponsored Content

×

Special Offer: $5 for 2 Months!

Your free article limit has been reached this month.
Subscribe now for unlimited digital access to our award-winning business news.