Veritas Classical School planning permanent St. Augustine campus

St. Johns County is reviewing a rezoning request for the new school building at 635 S. Holmes Blvd.


Veritas Classical School, a private Christian K-12 school in St. Augustine, plans to establish a new permanent campus.
Veritas Classical School, a private Christian K-12 school in St. Augustine, plans to establish a new permanent campus.
Special to the Daily Record
  • Business
  • Share

Veritas Classical School, a private Christian academy founded in 2017, plans a permanent campus at 635 S. Holmes Blvd. in St. Augustine, according to a St. Johns County rezoning request.

The school bought the 32.6-acre property for $1.6 million from David Sellers on Nov. 12, 2025, according to the county property appraiser. Matthews | DCCM of St. Augustine is named as the civil engineer. 

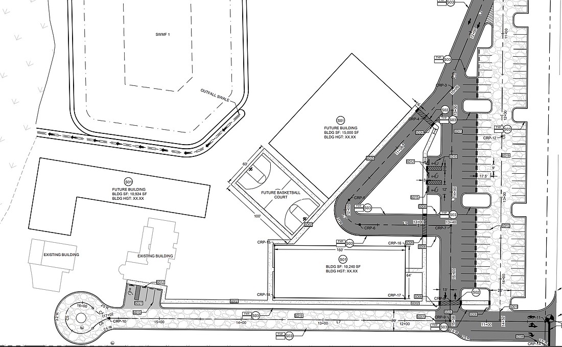
Site plans under county review show a 10,240-square-foot building, where there is currently a single-family home built in 1993, with two future structures planned at 15,000 square feet and 10,924 square feet.

Veritas currently leases two campuses: at 253 Florida 16 for kindergarten through third grade and at 169 Martin Luther King Ave. for sixth through 12th grades. 

Tuition starts at $12,400 for kindergarten and tops out at $14,725 for 12th grade, according to the school website.

A school staffer said the goal is to bring all grades onto a single campus. 

According to the school website, Veritas prioritizes typical academics including mathematics and reading, as well as fine arts, music and physical education. The school teaches through a biblical worldview using classical Christian values, according to its mission statement and purpose.

Veritas opened with 45 students and reported 235 in 2023, according to the website. 

The school is accredited by the Association of Classical Christian Schools and the National Council for Private School Accrediting.

The county planning and zoning agency will discuss the rezoning request at an upcoming meeting.

 

Sponsored Content

×

Special Offer: $5 for 2 Months!

Your free article limit has been reached this month.
Subscribe now for unlimited digital access to our award-winning business news.