Site-development and civil-engineering plans are in city review for a Chase Bank site in The Village at Seven Pines, the retail development by Regency Centers Corp. at southeast Butler Boulevard and Interstate 295.
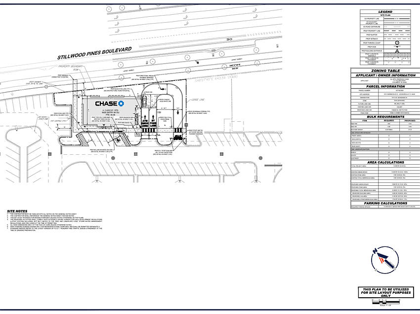
Site-construction plans show a proposed 3,432-square-foot Chase Bank on a 0.32-acre outparcel. IA Interior Architects of Coral Gables is the architect. Bohler Engineering FL LLC of Orlando is the civil engineer.
Plans show a drive-thru ATM lane and a bypass lane.
The city previously reviewed a mobility fee calculation application for Chase Bank to build a bank on a leased site at Kernan Boulevard South and Stillwood Pines Boulevard within the Seven Pines residential and commercial development.
The application documents showed that through Seven Pines Regency LLC, Jacksonville-based Regency Centers intended to lease a 0.437-acre site to JPMorgan Chase Bank to build a branch of up to 4,000 square feet of space, including walk-up and drive-up ATMs.
JPMorgan Chase & Co. Chairman and CEO Jamie Dimon told Jacksonville reporters during a visit Jan. 31, 2024, that the bank planned to add 10 more branches in the metropolitan area. At that time, Chase had 20 offices in the Jacksonville market after it started to build a branch network for its Chase business in 2013.
Chase now has 26 branches in Northeast Florida and has said it will continue to open more.
Chase is based in New York City.

Regency Centers broke ground Feb. 18 for The Village at Seven Pines. The first retail stores are expected to open in 2027.
The Village at Seven Pines is a Publix-anchored shopping center adjacent to the Seven Pines neighborhood.
At a groundbreaking ceremony Feb. 18, Regency announced tenants that include Chase, Ember & Iron restaurant, 1928 Cuban Bistro, RE Spa, Pottery Barn Kids, ToyTopia and Williams Sonoma.
Ember & Iron says it plans to open there in 2028.
The leasing brochure says the center will be 250,000 square feet. The retail portion will be at least 182,000 square feet.
There are pads for outparcels, which are typically sold or leased to developers or owners for restaurants, fast-food, office, medical and other uses.
Regency Centers bought 22.39 acres at Seven Pines Sept. 15. 2025, for $8.47 million.

On Aug. 1, 2025, the city issued a permit for Regency Centers to clear the land. The company then announced it would move its headquarters from Downtown into the suburban retail development.
Regency Centers, a national owner, operator and developer of shopping centers, and former landowner Sawmill Timber LLC said previously The Village at Seven Pines will be the primary retail component of the master-planned Seven Pines community.
Seven Pines is about 1,000 acres. When complete, it is anticipated to have about 1,600 single-family homes, apartments and more than a million square feet of commercial and retail space.
Sawmill Timber sold land fronting The Village at Seven Pines for uses by Life Time Inc. for a fitness center, Baptist HealthPlace for primary care and other uses, and Onicx Group of Tampa for a two-story Seven Pines Medical Office Building that will lease its first floor to Halo/Precision Imaging Diagnostics.