The Phoenix Arts & Innovation District is gaining a new neighboring business now that the city issued permits for the Main Street Food Park and Mini Golf in North Springfield.
Four permits, issued March 16 through April 27, total project costs of $498,100 for Taino Management LLC, led by Hector Zayas, to convert the use of a building into a restaurant and event space and add outdoor space that includes a children’s playground.
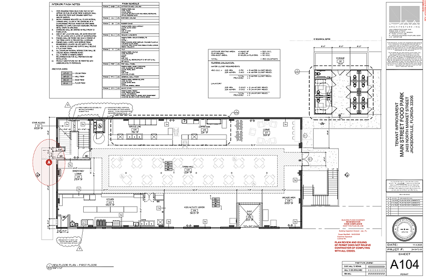
Plans show a 10,163-square-foot build-out at 2403 N. Market St., east of North Main Street.
The first floor would include a restaurant and event space with a bandstand/lounge, full bar, coffee bar, dessert bar, children’s indoor recreation area and outdoor playground, a splash pad and outdoor seating.

The second floor includes a stage area, lounge, dressing rooms, dining area and office.
The mini-golf would be 15 holes for up to six players.
The Jacksonville Planning Commission voted Jan. 23, 2025, to recommend approval of legislation to rezone the vacant warehouse property on part of the block bordered from the north clockwise by 15th, Liberty, 14th and Market streets for redevelopment as a food court and entertainment operation.
The 0.6-acre site with the warehouse and land is at northeast Market and 14th streets.
Jacksonville City Council then voted Feb. 11, 2025, in favor of a rezoning from Industrial Light to Planned Unit Development, contained in Ordinance 2024-0981.
Zayas applied to rezone the property, whose owner is listed in city documents as Oakshire Holdings LLC of Miami.
Zayas and his wife, both U.S. Navy veterans, previously operated the Main Street Food Park at 1352 N. Main St. The name of the Market Street project is listed as “Main Street Food Park and Mini Golf Adventures” on documents attached to the legislation.

According to a site plan attached to the ordinance, the warehouse on the property would be transformed into a food court with an art gallery and entertainment space.
A playground and splash pad, bathrooms, stage and food kiosk would be built on a lot adjacent to the warehouse to the east. The mini-golf course would occupy the eastern portion of the 0.6-acre property.
Beer, wine and liquor would be served on the site, according to a staff report on the rezoning application.
The staff report said the two-story warehouse building on the site was built in 1959.
The site is immediately north of the Future of Cities’ Phoenix Arts & Innovation District, where the first phase of development is underway on 8.3 acres.