Large vacant department stores are attracting a new use in the suburbs -— indoor adventure parks.
Westland Park Plaza in Southwest Jacksonville and Southside Commons in Arlington are among the latest strip shopping centers that have large spaces vacated by big-box retailers and now planned for family fun and games.
In Westland Park Plaza, the city issued a permit March 12 for Lululand Adventure Park.
The space is at 6000 Lake Gray Blvd., Unit 35, in the shopping center at northwest Interstate 295 and Blanding Boulevard. The center was built in 1989.
Lululand shows on its website that it has two activity centers in Virginia and seven coming soon to Jacksonville as well as to Iowa, Pennsylvania, Tennessee and three more in Virginia.
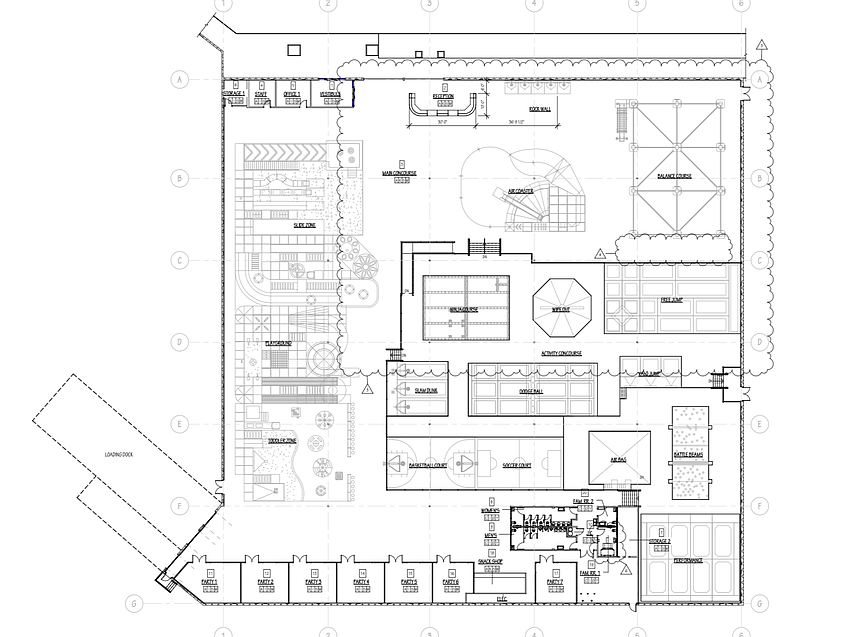
It calls itself a one-stop shop for family entertainment, offering trampoline courts.
Plans for the Jacksonville location indicate features such as a basketball court, battle beams, dodgeball, playground, rock wall, soccer court and toddler zone. It offers birthday parties and says all ages are welcome.

Lululand Adventure Park FL LLC is based in Westland Park Plaza in Suite 30.
It was registered with the state in March 2025 and is led by members Jian Cheng Chen in West Palm Beach and Yiguo Lu in Virginia Beach, Virginia.
Wing Sing Construction Inc. of North Miami Beach is the contractor for the $135,000 construction project cost to convert the 56,400-square-foot space that appears to be where Burlington Stores Inc. had operated before it relocated to Argyle Village Shopping Center. Federal Hill Group LLC Architects of Providence, Rhode Island, is the architect.
The city issued permits in March for mechanical and fire protection work totaling $119,121 for Lululand Adventure Park FL LLC. Permits are pending for plumbing and mechanical work at an estimated $6,700.
Plans show structural work including setting up seven party rooms, replacing the restroom floor and wall tile, and repainting, as well as electrical and plumbing work.
The space also is referred to as Building 7.

Westland Park Plaza is on 17.06 acres. Property records show the center comprises seven buildings totaling 165,087 square feet of space.
Mishorim Orange LLC and Gold Orange LLC, affiliated entities based in Aventura, bought the property in 2024 from Washington Prime Group.
Through Mishorim Gold Jacksonville LP, the group previously bought the Regency Court Shopping Center in 2017, renovated it and signed tenants including SK8 City and Surge Adventure Park, and sold it in 2022.
Mishorim Gold Properties says at mgoldgroup.com that the 163,259-square-foot Westland Park Plaza center is anchored by LA Fitness and Guitar Center.
NRG Adventure Park appears to be moving into Southside Commons at Southside Connector and Tredinick Parkway in Arlington, north of Regency Square Mall.
The flyer for Southside Commons, which is owned by Jacksonville-based Sleiman Enterprises, shows NRG Adventure Park in the closed 80,000-square-foot Bealls store at 860 Commerce Center Drive.
A sign in the window also shows NRG is coming soon.

The playnrg.com site says of the center:
“Prepare to stimulate your senses, and create electric memories at NRG Adventure Park. The ULTIMATE destination where families and friends ignite their eNeRGy in an EXTREME way. Our indoor playground takes fun to the next level.”
It says each adventure park includes activities for groups of all ages. It offers birthday parties, as well.
It calls itself more than “just a trampoline park,” rather an “epic trampoline playground” with features such as a ball pit, basketball, dodgeball, foam pit, harnessed climbing, jousting pit, ropes court, toddler zone and zip line.
NRG Adventure Park’s first location is in Springfield, New Jersey. The website shows 22 locations coming soon in 18 states, including two more in New Jersey and three in Florida in Brandon, Jacksonville and Pinellas Park.

In October 2019, Bealls turned the store into R.M. Bealls, a brand of the department store chain, but closed that in 2020.
Built from 2004 to 2008, Southside Commons anchor tenants include The Church of Eleven22, Planet Fitness, Ross and Michaels.
The shopping center comprises almost 300,000 square feet of retail space among multiple buildings on 26 acres. It also has four available outparcels.