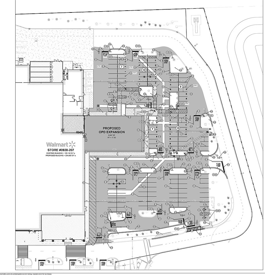
The Walmart Supercenter in the Durbin Park area of Northern St. Johns County plans to expand its online grocery shopping capacity by about 9,000 square feet, according to project documents.
St. Johns County is reviewing a permit application submitted Feb. 4.
The 195,000-square-foot Supercenter is at 845 Durbin Pavilion Drive in The Pavilion at Durbin Park shopping center. The store includes a combined grocery and pharmacy pickup zone, with several parking spots in a covered loading area.
Sanford-based CPH Consulting LLC is the civil engineer.

Walmart’s website says it is the largest grocery chain in the U.S., with more than 4,600 stores, including its Supercenters, discount stores and Neighborhood Markets.
The Durbin Park expansion project, which is labeled as “Proposed OPD Expansion” on a site map, is planned on the northernmost endcap of the Supercenter. OPD stands for online pickup and delivery.
The project is part of Walmart’s 2024 announced plans to expand and remodel 650 stores across 47 states and Puerto Rico. In an April news release, Walmart said it is expanding online pickup and delivery in the remodeled stores “to fulfill the growing number of online customer orders.”

“We want to make sure our stores reflect the community they serve but also make sure our stores are up to date, that they offer the best of what Walmart has to offer, and that they enable people to shop the way they want to shop,” Walmart Chief Operating Officer Kieran Shanahan said in the release.
On Feb. 3, Walmart became the first retailer to surpass $1 trillion in market capitalization. In its fiscal 2026 third-quarter report in November, the retailer said its revenue rose 5.8%, driven by a 27% increase in e-commerce sales and 53% growth in its advertising business, according to CNBC.com.
Bloomberg attributed the surge to a strategy in which Walmart leverages its scale to keep prices low while also boosting its online commerce capacity and efficiency.
“While Walmart has maintained its appeal to households looking for value, its online offerings are drawing new, wealthier shoppers seeking convenience,” Bloomberg reported.
The Wall Street Journal reported that Walmart’s growth was “fueled in part by Wall Street’s enthusiasm for the growth of the company’s online business as well as its investments in automation and artificial-intelligence technology aimed at improving efficiency.”
The St. Johns County Development Review Committee is scheduled to discuss the expansion project March 4.
Elsewhere in the county, Walmart is planning a World Commerce Center Supercenter off International Golf Parkway.
On Jan. 21, the county issued a building permit for the 179,708-square-foot store at a project cost of $18.65 million. It includes an attached garden center and liquor store, according to the permit.
The project is planned on a 21-acre site at 150 Foundry Lane, about 2 miles west of Buc-ee’s, Costco and Bass Pro Shops Outdoor World, directly south of Tocoi Creek High School.