Grafton & Fleck’s Steakhouse planned for former Ragtime Tavern

River & Post owners Jeff McCusker and Bob Fleckenstein will operate the new restaurant at The Corner.


Grafton & Fleck’s Steakhouse is planned at 299 Atlantic Blvd. in the site of the former Ragtime Tavern.
Grafton & Fleck’s Steakhouse is planned at 299 Atlantic Blvd. in the site of the former Ragtime Tavern.
  • Restaurants
  • Share

The Atlantic Beach permitting department is reviewing applications for a steakhouse planned at 299 Atlantic Blvd. in the site of the former Ragtime Tavern.

Permits were submitted in January for Grafton & Fleck’s Steakhouse, a new concept from Northeast Florida restaurateurs Jeff McCusker and Bob Fleckenstein. The two also own River & Post in Riverside and River & Fort in St. Augustine.

McCusker’s middle name is Grafton.

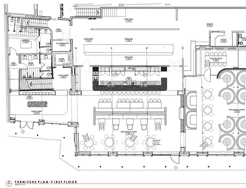
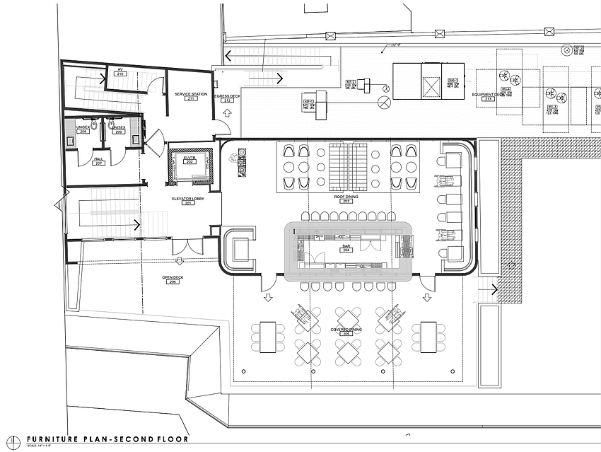
Plans show a first-floor dining room with 158 seats, with another 20 available in a private dining area. A second-story addition includes rooftop dining, with 42 open-air seats and another 44 seats under a cover.

Grafton & Fleck’s Steakhouse, a new concept from Northeast Florida restaurateurs Jeff McCusker and Bob Fleckenstein, is planned in the former Ragtime Tavern at 299 Atlantic Blvd.
Grafton & Fleck’s Steakhouse, a new concept from Northeast Florida restaurateurs Jeff McCusker and Bob Fleckenstein, is planned in the former Ragtime Tavern at 299 Atlantic Blvd.

Cronk Duch Architecture of Jacksonville is listed as the architect. Plans show RDID of Jacksonville as interior designer. The structural engineer is Alexander Grace Consulting Inc. of Jacksonville Beach, and Jacksonville Beach-based Trusted Engineering is the engineer. RLH of Oviedo is the general contractor.

Cost estimates and a construction timeline are not included in the plans.

The building, owned by Rad Lovett of Southcoast Capital Partnership Ltd., was constructed in 1927, according to the Duval County Property Appraiser.

Ragtime, open for more than 40 years, was a mainstay in an area known as The Corner, where Neptune Beach and Atlantic Beach meet at Atlantic Boulevard.

During the 1980s and 1990s, the restaurant expanded from a small dining spot to include a center dining area, Salud, and the Taproom & Brewery. 

Ragtime closed in January 2025, one month after being sold to Kelly Cos. of Southern California. 

Former owner SPB Hospitality also sold Seven Bridges Grille & Brewery in Tinseltown to Kelly Cos., which closed it in June 2025. SPB Hospitality also closed A1A Ale Works in St. Augustine in May 2024.

 

Sponsored Content

×

Special Offer: $5 for 2 Months!

Your free article limit has been reached this month.
Subscribe now for unlimited digital access to our award-winning business news.