Talkin’ Tacos franchisee Jason Malih is working toward building-out a new concept – Sip N Smash – in The Palms at Gate Parkway.
The restaurant will serve burgers, fries, milkshakes and breakfast sandwiches, according to permitting records.
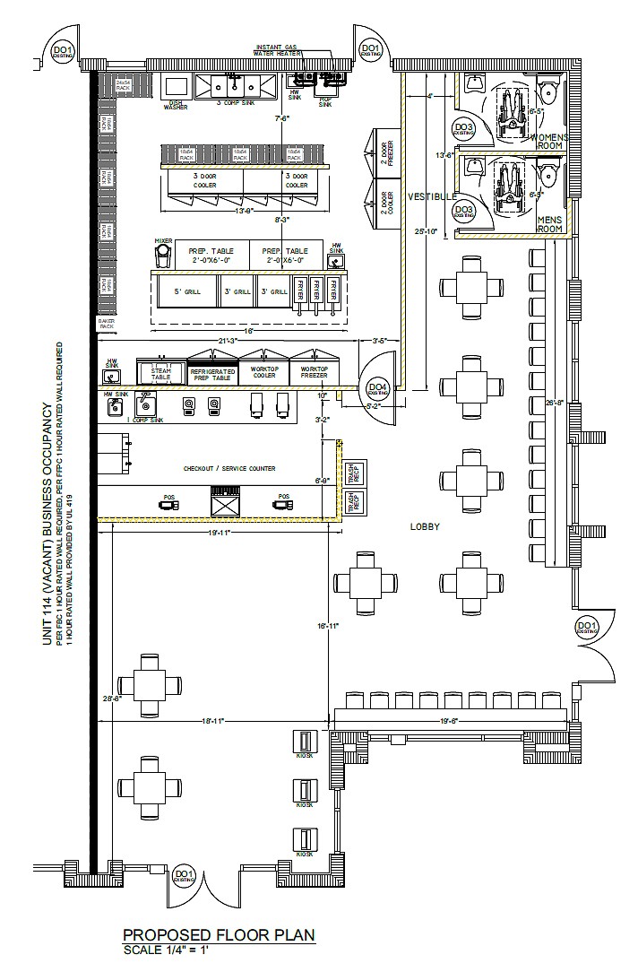
The city issued a permit Sept. 23, 2025, for a $220,000 tenant build-out in 2,270 square feet of space in Units 115-116 at 7540 Gate Parkway. Honest Construction Inc. of Jacksonville is the contractor.
Malih has not responded to calls and emails requesting comment.

Jacksonville-based Ash Properties is the owner of The Palms at Gate Parkway. Sip N Smash is planned in a set of end units in the middle building of three that comprise the retail-commercial center, which faces Gate Parkway.
Plans for Sip N Smash show ordering kiosks upon entering as well as a service/checkout counter.
The Department of Business & Professional Regulation indicates a seating capacity of up to 110. Building plans show table and bar/booth seating of at least 50.

Plans do not show a bar or alcohol sales.
Malih, of Jacksonville, and Steven Salman, of Palm Coast, registered Sip N Smash Inc. with the state May 28, 2025.
Malih also is shown in state Division of Corporations records as an agent or director of Serenity Jax Beach Inc., which is Serenity Lounge; Gastro Subs Inc. in Ponte Vedra Beach; J&L Franchising II Inc., which is the owner of Talkin’ Tacos in Jacksonville Beach and J&L Franchising Inc., at Talkin’ Tacos in Town Center; and Shawarma Factory LLC, filed July 29, at 10916 Atlantic Blvd.
He also is shown as an owner in seafood markets in West Jacksonville, through J and T #1 Inc. at 1347 Cassat Ave., and in Brentwood through JT Seafood Inc. at 4100 Brentwood Ave.