Dutch Bros Coffee is planned in St. Johns County off International Golf Parkway.
The site is about 2 miles east of World Commerce Center, which includes Buc-ee’s, Costco and Bass Pro Shops. It is near the proposed Walmart Supercenter at 3405 International Golf Parkway, where a Chick-fil-A, gas station and bank are planned.
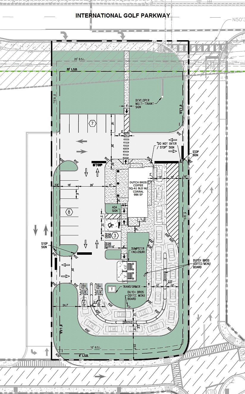
The drive-thru-only kiosk is proposed on an outparcel at Foundry Commercial’s IGP/95 Logistics Park, though it is not part of that project, the real estate company Foundry said.
The county began reviewing the project Oct. 3 as part of the permitting process.

Orlando-based Z Development Services is the civil engineer. Steinemann & Co., through World Commerce Center LLP, owns the land.
Plans show a 986-square-foot building with a dual drive-thru and no interior seating, consistent with Dutch Bros’ typical format.
The company has announced at least a dozen Northeast Florida sites. Four are open, including its first in the region, which opened in August 2024 at 50 McCoy Way in St. Augustine.
Dutch Bros, founded in 1992 in Grants Pass, Oregon, sells coffee, teas, energy drinks, smoothies, lemonades, cold brew and its signature Dutch sodas, along with a limited menu of pastries.
The name is pronounced “Bros” and not as “brothers.”
The St. Johns County Development Review Committee is scheduled to discuss the project Nov. 5.