A proposed RaceTrac gas station and convenience store is moving forward in the Hastings area in south St. Johns County, with the county reviewing civil plans submitted Jan. 30.
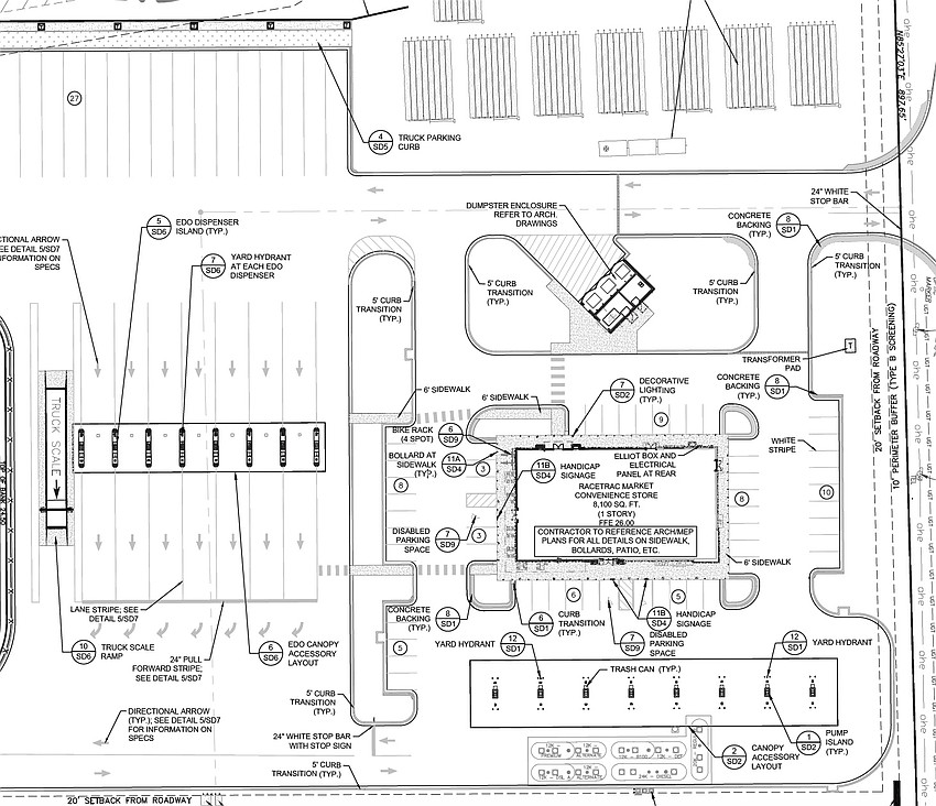
The project application specifies eight fueling stations with 16 pumps for passenger vehicles and eight diesel fueling stations for tractor-trailers. Plans include a 8,100-square-foot store, which typically offers breakfast items, pizza, sandwiches, subs, ice cream and frozen items, according to the company website.
The project, at 10110 U.S. 1 S. less than a quarter-mile south of Florida 204 and southwest of Interstate 95, was rezoned Sept. 16, 2025, from Open Rural to Commercial Intensive and Highway and Tourist. The St. Johns County Board of County Commissioners approved the rezoning 4-0, with Commissioner Krista Joseph absent.

The Jacksonville-based Rogers Towers law firm submitted the rezoning request Dec. 3, 2024, on behalf of landowner Extreme FW Investments LLC of Palm Coast. Connelly & Wicker | Prime AE of Jacksonville is the project civil engineer.
Earlier plans presented to the county’s Planning and Zoning Agency in August 2025 showed a future 5,000-square-foot store at the site, but that development is not included in the plans currently under review.

Atlanta-based RaceTrac Inc. says on its website that it is the 22nd-largest privately held company in the United States and has operated since 1934. It says it has nearly 800 retail locations under the RaceTrac and RaceWay brands across 12 Southeastern states.
RaceTrac employs more than 10,200 people across RaceTrac, RaceWay and affiliated companies Metroplex Energy and Energy Dispatch. Metroplex Energy supplies fuel to RaceTrac locations and other retailers and wholesalers in 15 southeastern states. Energy Dispatch employs more than 250 drivers and operates 98 tractor-trailers in six states, delivering more than 1.2 billion gallons of fuel annually.
RaceTrac Inc. acquired Gulf Oil LLC in December 2023.
The county’s Development Review Committee is scheduled to discuss the Hastings RaceTrac plans Feb. 25.