The retired CEO of Jacksonville-based trucking company Landstar is planning a restaurant complex with pickleball courts, a stage and more in Mayport.
James Gattoni, who retired in 2024 after 28 years with Landstar, said Feb. 10 he was targeting a spring 2027 opening for the restaurant at 2989 Mayport Road. The site is near the Wonderland Drive intersection north of Kathryn Abbey Hanna Park.
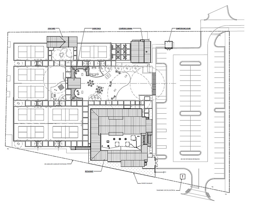
Gattoni said the idea of opening a food and beverage operation came to him after he retired. He said the restaurant would be the draw for the establishment, which he strives to make into gathering spot for families to enjoy evenings outdoors listening to music. He also expects to have a 7-by-14 foot outdoor LED a screen for watching sports.

“We want to be a restaurant and community space first, and pickleball will be second,” he said.
The restaurant is identified in the permit application as Coastal Pickleball Club, but Gattoni said he had not chosen a name for the establishment.
An application for city permitting shows a restaurant with a cabana, golf simulator, eight pickleball courts and the event stage.
Construction costs are estimated at $3.59 million. Bent Construction LLC of Jacksonville is the contractor. Ervin Lovett Miller is the architect and landscape architect.

Gattoni bought the 2.13 acre site in November 2024 for $1.28 million.
The plan is for three separate buildings.
• A 5,877-square-foot single-story wood-frame restaurant over a concrete podium at an estimated $2.8 million.
• A 540-square-foot pavilion with a restroom and service area at an estimated $280,000.
• A 686-square-foot building with a golf simulator room and a storage area at an estimated $160,000.

Plans also call for a 2,000-square-foot outdoor turf area with an event stage at an estimated $350,000.
Gattoni was CEO of Landstar from 2014 to 2024, when he was succeeded by former CSX executive Frank Lonegro.
In the restaurant, which he said he had yet to name, he plans to serve American-style food with entrees ranging from $15 to $25.

At one time, Gattoni said he planned to establish a private pickleball club on the property, but has scrapped that business model.
He said he had yet to set court fees. To build a fan base, play may be free at the outset.
