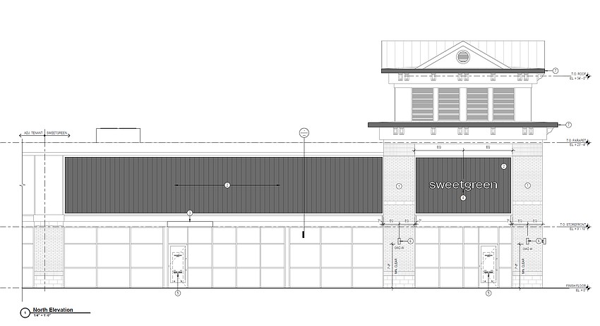
Sweetgreen, the national chain that sells customized and specialized salads, bowls and plates, intends to open at St. Johns Town Center.
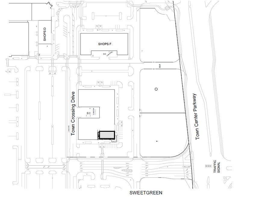
The city is reviewing a permit application for Sweetgreen at 4624 Town Crossing Drive, Unit 113, where fast-casual chain Noodles & Co. has been operating for a decade.
Noodles & Company franchise owner Leigh Lommen said Feb. 17 by text that the company has struggled in general and he wasn’t making enough income to justify continuing the location.
He said Noodles & Co. will close March 31 at St. Johns Town Center and he thanked his 17 employees.
The permit application for Sweetgreen shows an estimated build-out cost of $508,008 for the 2,561-square-foot space.
The Sweetgreen.com site shows that the restaurant is coming soon to 4624 Town Crossing Drive in St. Johns Town Center.
A spokesperson said by email that Sweetgreen will be sharing more information in the coming months.
About Noodles & Co.
Lommen, managing partner of Winterfell Investments LLC, opened Noodles & Co. in spring 2016 in part of the former Crispers restaurant at St. Johns Town Center. The build-out was for 2,700 square feet.
In a Jan. 12 news release, Broomfield, Colorado-based Noodles & Co. announced plans to close 30 to 35 restaurants in 2026, but did not list the addresses.
As of Dec. 30, 2025, the chain had 340 company-owned restaurants and 83 franchise restaurants.
Last year it closed 42 restaurants, of which 33 were company-owned and nine were franchise locations.

“Decisions like this are made thoughtfully and with a long-term view of the business,” Joe Christina, CEO and president of Noodles & Co., said in the news release.
“Our fourth quarter results reinforce that when we concentrate our resources on restaurants with the strongest opportunity to perform, Noodles can drive meaningful top-line growth. That performance gives us added confidence as we continue to refine our portfolio in 2026,” Christina said.
“These actions are intended to strengthen the overall health of the brand and our financial position, helping to ensure we are well-positioned for profitable growth and long-term value creation for our shareholders.”
Noodles & Co. says that since 1995, the brand “has brought people together over craveable classics and globally inspired flavors, from indulgent Creamy Mac & Cheese to bold Japanese Pan Noodles.”
Menu items include alfredo, cavatappi, fettucine, noodles, pad thai, shrimp scampi, spaghetti, stroganoff and tortelloni along with salads, sides and soups.
About Sweetgreen
Sweetgreen Inc. said in November that it expects to open 15-20 restaurants in fiscal 2026.
It has 301 locations in 26 states and Washington, D.C.
Its 13 locations listed in Florida include Jacksonville. Most are in South Florida and Tampa.
CNBC.com reported Nov. 12, 2025, that Sweetgreen was struggling as its traffic and sales continue to fall and it reports millions in losses each quarter.
It said earnings worsened in its third quarter as same-store sales declined 9.5% due in part to a 11.7% drop in foot traffic.

“I think investors are nervous about everything right now, including Sweetgreen,” said Sharon Zackfia, the head of consumer equity research at William Blair.
“They’ve clearly underperformed that general benchmark, though, and it’s up to them to turn the ship around and get those same store sales into a place where investors start to pay attention again," Zackfia said, according to CNBC.
Sweetgreen acquired the robotic kitchen startup Spyce in August 2021 and intended to automate its stores. It announced, as it reported third-quarter earnings, that it would sell Spyce to lower operating costs.
CNBC.com said Sweetgreen has no debt and plenty of cash, in part due to the $100 million it received in the Spyce deal.
Sweetgreen will release fourth-quarter and full-year 2025 financial results Feb. 26.

Sweetgreen says in a Jan. 5 Securities and Exchange Commission filing that since it was formed in 2007, “the brand has reimagined what fast food can be: fresh, flavorful, and built on real relationships with growers.”
“Born at the farmers market, Sweetgreen’s supply chain now spans the country, still rooted in relationships with local farmers and growers,” the filing says.
The first location opened in Washington, D.C.
Sweetgreen went public with its initial public offering in November 2021.
At the time, BusinessofBusiness.com reported that former Georgetown students Jonathan Neman, Nicolas Jammet and Nathaniel Ru launched Sweetgreen as they sought to create a salad chain “that would taste good and not serve up boring food, all while using ingredients from local farmers.”

They started in 2007 by opening one location in Georgetown three months after graduation.
The headquarters moved from Washington, D.C., to Los Angeles in 2016.
The menu says it offers “fresh, plant-forward, earth friendly food.
Examples include a winter harvest bowl of “antibiotic-free roasted chicken, maple glazed squash, charred balsamic cabbage, goat cheese, almonds, organic shredded kale, wild rice, apple vinaigrette.”

A miso glazed salmon protein plate comprises “antibiotic-free miso glazed salmon, avocado, cucumbers, pickled onions, crispy onions, white rice, nori sesame seasoning and spicy cashew.”
A Shroomami bowl includes roasted tofu, warm portobello mix, cucumbers, basil, shredded cabbage, roasted almonds, wild rice, organic shredded kale and miso sesame ginger.
At St. Johns Town Center
Sweetgreen can expect a new neighbor at St. Johns Town Center.
The city issued a permit July 24 for Leaders Construction Inc. to build-out 2,552 square feet for Paris Baguette at 4624 Town Crossing Drive, No. 125, at a project cost of $150,000.
The space previously was Pieology Pizzeria.

Paris Baguette, with more than 4,000 locations around the world, said it would open in Town Center by December, but it has not opened yet.
Paris Baguette specializes in freshly baked cakes, pastries, quiches and bread products, and serves Lavazza coffee products.
The store will be in a strip that includes Noodles & Co., Chicken Salad Chick, Smoothie King and CAVA. The space will offer indoor and outdoor seating.
Sweetgreen won’t be the first salad chain at St. Johns Town Center.
Jacksonville-based Tossgreen operated there but has closed. It now has one location in Downtown Jacksonville in the VyStar Tower at 76 S. Laura St.