JWB Real Estate Capital can build-out the top floor of its Downtown Greenleaf & Crosby Building, completing renovations of the five floors it will use for its headquarters.
The 12-story historic building is at 200 N. Laura St. at northwest Adams and Laura streets.
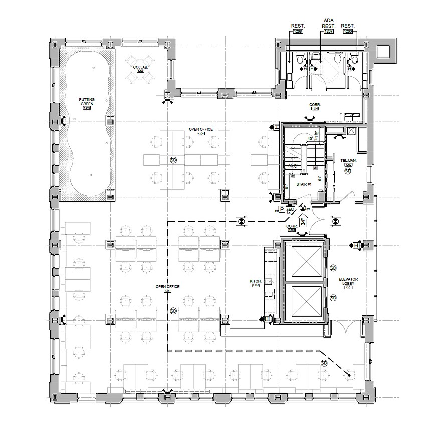
The city issued a permit Nov. 10 for Jacksonville-based Avant Construction Group to renovate 3,649 square feet on the 12th floor at a project cost of $552,000.
That boosts the project cost for the five floors to more than $3 million and the square footage to 21,375 square feet, almost a third of the nearly 63,000-square-foot building.

The 12th floor plans show open office and collaboration space, a kitchen and, an amenity that is becoming more common among tenant spaces Downtown, a small putting green for staff.
On the third floor, the city issued a permit Aug. 1 for Avant Construction Group to build-out 3,665 square feet of space as an amenity floor for use by all tenants. JWB President Alex Sifakis previously specified a gym, common space, outdoor area and more.
Plans for the third floor show a kitchen, pantry, open office and other space, including the existing atrium at the historic structure.
Jacksonville-based JWB Real Estate Capital intends to relocate in phases from 7563 Philips Highway in Deerwood Center in the Southside to the Northbank building, also marketed as The Greenleaf.
The previous headquarters permits comprise:
• June 13: $554,000 project to build-out 3,708 square feet on the fourth floor for conference rooms, open office areas, collaboration space, kitchen and atrium space.
• June 13: $550,000 for 3,744 square feet on the 11th floor for conference rooms, open office areas, collaboration space, kitchens and a mother’s room.
• Jan. 31: $552,000 for 3,880 square feet on the fifth floor for conference and collaboration rooms as well as open office space and an atrium.
• Dec. 31: $872,350 for 6,394 square feet on the second floor to create open office space, conference rooms, a lounge and kitchen, collaboration rooms and other space.
Studio 9 Architecture & Interior Design of Jacksonville is the architect. Codes-ABC Inc. of Orange Park is the private provider for code compliance.

A marketing brochure by The Urban Division at Colliers calls it Greenleaf Tower. Colliers Senior Vice President Matthew Clark and the Colliers Urban Division is the listing agent.
Clark and Senior Associates Sam Middlekauff and Steinemann are marketing the space.
Sifakis said May 27 the company will take the second, fourth, fifth, 11th and 12th floors.
He said occupancy of the building will be 100% when JWB moves in after renovations are completed, likely early next year.
Two of the three tenants on the ground floor have been identified as Oak Steakhouse, which is planned in the former Jacobs Jewelers corner space, and the HiReformance Institute studio for Pilates near it.
Sifakis said May 27 the Oak Steakhouse would open in 2026.
JWB Real Estate Capital bought the building for nearly $7 million in 2022.
The city Downtown Investment Authority approved a $4.97 million forgivable loan package in August 2023 for JWB to finance improvements at the building at an estimated cost of $16.88 million.
The renovated building provided 44,000 square feet of office space for lease as well as the restaurant space on the ground floor.