Activate, a Canada-based global immersive live-action game center, intends to open in St. Johns Town Center.
PlayActivate.com says it is “coming soon.”
“We’re ready for you, Jacksonville,” the site says.
A spokesperson said by email April 21 the company will open this year. While Activate franchises, the Jacksonville center will be a company location.
The city is reviewing a permit for Activate Games – Jacksonville at 10275 Buckhead Branch Drive, Suite 101. That is the former site near Dillard’s and Nordstrom of Ballard Designs, which moved in 2022 nearby to 4840 Big Island Drive.
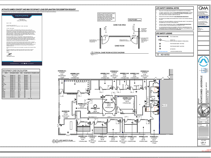
Enovative Technologies Inc., led by Joe McClure, is the agent. GMA Architecture of Downer's Grove is the architect.
ARCO/Murray National Construction Co. Inc. of Downers Grove, Illinois, is listed as the contractor for the estimated $1.6 million project to build-out 8,700 square feet of space for Activate and its 12 interactive game rooms.
Enovative Technologies Inc., led by Joe McClure, in Jacksonville is the agent. GMA Architecture of Downers Grove is the architect.
Participants can move among rooms such as control, grid, grip, hide, hoops, laser, mega grid, mega laser, pipes, press, scan and strike.
They can move among rooms offering such challenges as laser mazes, an interactive rock wall, a version of dodgeball that involves hitting lighted targets instead of other players and a game of hide-and-seek that involves avoiding electronic “eyes.”

Activate said in an April 2 news release that it creates live-action games “where skill, smarts, and teamwork win.”
“Play against the room or against each other–it’s easy to play but hard to beat,” it says.
Activate said it has more than 75 locations worldwide, including 64 across North America, and is expanding across Europe and the Middle East.
A March 12 release said the company was on track to open 30 more centers in 2026.
In the U.S., the website shows 46 locations in 23 states. There are two open in Florida in Atlamonte Springs and Orlando, with two coming soon to Jacksonville and Miami.
Individual pricing at Altamonte Springs is $27 for 60 minutes and $35 for 90 minutes, with pricing available for groups and parties.
There, hours start at 11 a.m. Monday-Thursday and 9:30 a.m. Friday-Sunday. The last activities start at 10 p.m. Sunday-Thursday and 11 p.m. Friday and Saturday.
Activate’s site said walk-ins are welcome but it recommends that customers book ahead online or by phone.
Outside food and beverages are not permitted, although participants can bring water that can be stored in lockers at the facility.
“Each Activate location is beaming with a selection of interactive light-up game rooms designed to test your physical and mental agility,” says the website.
“Enter the game where you become the player in the world’s first active gaming facility. Jump, climb, problem-solve and laugh, as you and your friends move between challenges. Each dynamic game room has interactive technology that reacts in real time, ensuring an adrenaline-filled adventure,” the website says.

Activate says that while the minimum age to participate is 6 years old, its games are designed for adults and may be challenging for children under 10 years old.
For children ages 6 through 13 years old , an adult must be present at the facility throughout the entire gaming experience, the site says.
The site explains that participants choose their “micro-arena” and can stay there or try all of the rooms.
Each room has high-tech games that last 1-3 minutes each. Difficulty levels are 1 to 10, “unlocking as you beat them. The more you play, the better you’ll get.”
In the March 12 news release, which announced two new locations in Norway and Sweden, the company said it is headquartered in Winnipeg, the capital of the province of Manitoba, and now has locations in Canada, Finland, France, Mexico, the United Kingdom, the United Arab Emirates and the U.S.
It said the company was founded in 2019 in Canada.
In an April 2 news release, Activate said the Financial Times global news site ranked Activate as the No. 1 fastest-growing Leisure and Entertainment company in the Americas for the second consecutive year, and the No. 1 fastest-growing company in Canada. The company also placed No. 11 across all industries in the Americas on the 2026 list.
The release said Activate recently doubled its credit facility to $72 million with Export Development Canada and RBC Royal Bank, with plans to reach 100 locations across 12 countries by 2027.

The Activate location in Town Center appears to be next door to the proposed Sandbox VR, an “immersive virtual reality experience” that intends to renovate 4,517 square feet at 10275 Buckhead Branch Drive, No. 119, at an estimated cost of $450,000.
Sandbox VR’s space was a nail bar behind Garage, MAC Cosmetics and Chanel Fragrance and Beauty. It is opposite Lilly Pulitzer on Buckhead Branch Drive.
Based in Pleasanton, California, and operated as a franchise, Sandbox VR shows 77 locations worldwide on its website. The 45 U.S. locations in 20 states include three in Florida in Fort Myers, Orlando and St. Petersburg.
The locations include virtual reality rooms and space for birthday parties, corporate events, team building and social gatherings.
“Sandbox is a futuristic VR experience for groups of up to six where you can see and physically interact with everyone inside, just like the real world,” according to sandboxvr.com.
“Inspired by Star Trek’s holodeck, our exclusive worlds let you feel like you’re living inside a game or movie, and are built by EA, Sony and Ubisoft veterans. See why Justin Timberlake, Katy Perry, Kevin Durant and Will Smith support us. In here, it’s possible.”