Jacksonville University is bringing its Healthcare Simulation Center back to the Arlington campus after more than six years in a former shopping plaza at Beach and University boulevards.
The city is reviewing a permit application for JU to spend an estimated $3.7 million to build-out the third floor of its College of Healthcare Sciences building. PQH Group Design Inc., of Jacksonville, is the architect.
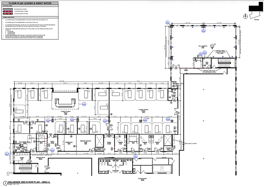
The College of Healthcare Sciences occupies the bottom two floors of the three-story building at 5491 Dolphin Point Blvd., which is north of the JU campus and across a parking lot from the medical school that the university is building in partnership with Lake Erie College of Osteopathic Medicine.
First-year classes at the medical school are scheduled to begin this summer.
The 21,000-square-foot simulation center project will include examination rooms, a nurses’ station, mock hospital rooms, debriefing and control rooms, classroom space, an anatomy lab and interactive multipurpose space.

JU wrote in a March 2 statement it was bringing its “cutting-edge simulation work back to campus, aligning with our expansion of experiential learning opportunities to better serve our students and faculty.”
“We will centralize resources in our state-of-the-art Health Sciences Complex,” it wrote.
JU’s Healthcare Simulation Center was established in 2014 at JU’s campus in Arlington to train nurses during the Ebola virus.
When the program outgrew its initial 5,000-square-foot space, JU leased the former Albertsons grocery shopping center at Beach and University boulevards.
That center eventually grew to more than 30,000 square feet where nurses and first responders are trained using technology and tools such as medical manikins to duplicate the physical responses of patients in a simulated hospital environment.