Circle K appears to be the gas station interested in developing a site at The Nexus at Regency, which is the redevelopment name of Regency Square Mall in Arlington.
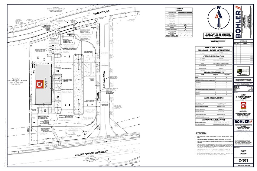
City utility JEA is reviewing a service availability determination request for Circle K to develop on the proposed Outparcel 5 at northwest Atlantic Boulevard and Monument Road. Bohler LLC of Orlando is the applicant and civil engineer.
The 1.42-acre site would accommodate a 5,200-square-foot building with eight gas pumps. It would be accessible by internal roadways that the developer would provide.
The site is along Arlington Expressway, which meets Atlantic Boulevard at the property.
Circle K Stores Inc. would lease the ground from property owner developer Blackwater Regency Acquisition LLC.

The 59-year-old Regency Square Mall is at 9501 Arlington Expressway. Three pieces of the property are separately owned and are not part of the Blackwater redevelopment: Impact Church of Jacksonville in the center of the mall and, on the west end, the Dillard’s Clearance Center and the closed Sears.
The city issued a permit April 6 for Blackwater Development LLC to start site-clearing at a project cost of almost $3.7 million.
Work includes asphalt removal, sidewalk removal, curb removal, storm drainage, sanitary sewer, water main, fire main, subgrade, base, curb, sidewalk, asphalt paving, striping and signage, the permit application says.
The city approved civil engineering development and sketch plans March 26 for work on infrastructure to prepare outparcels along Atlantic Boulevard and Monument Road.
With those approvals, Blackwater Development LLC can start to prepare what plans show as eight outparcels from 1.1 acres to 2.25 acres at the mall property’s southwest corner.
Previously filed plans had indicated up to 11 total outparcels wrapping around the southeast corner of the property at Atlantic Boulevard and Monument Road.
Blackwater said that outparcels would be available for retail, banking and other uses.

Users so far have been identified in regulatory filings as:
There also has been interest by Dutch Bros Coffee for a kiosk on the property.
A burger restaurant also is expected, according to a letter from Blackwater Regency LLC to Impact Church of Jacksonville Inc.
That letter, dated Aug. 18, 2025, outlined “construction of the buildings including but not limited to Raising Canes restaurant, a burger restaurant, a credit union, a gas station, a car wash, a bank, and a coffee restaurant building (and other buildings and improvements on the East Side of Regency Square Mall) and related parking areas in the outparcel area.”

Civil engineering plans also indicated:
Blackwater Regency LLC has applied to the city to demolish 371,444 square feet of the closed mall from Impact Church to the closed JCPenney building at the east end.
The project is in litigation, however.
Impact Church of Jacksonville Inc. has filed two complaints since late 2025 in the 4th Judicial Circuit Court against Blackwater Regency LLC, Blackwater Regency Acquisition LLC, Rurmell McGee, real estate developer Ramzy Bakkar, Xera Realty Inc. and Mustard Tree LLC.
The lawsuit accuses Blackwater of diverting a deal from the Jacksonville church to acquire the property.
Eric Lawson, corporate counsel for Impact, said the church wanted to buy the mall property and began working with McGee in his capacity as a real estate broker for the purchase to earn a commission on the sale.
Impact Church alleges McGee breached the agreement by purchasing the property without the church’s knowledge.
McGee and Blackwater deny the claims.
The August 2025 letter was included in litigation files.