Community First Credit Union is seeking a zoning exception to allow food preparation and service at its Murray Hill branch, which it plans to establish through a renovation of the defunct Edgewood Bakery.
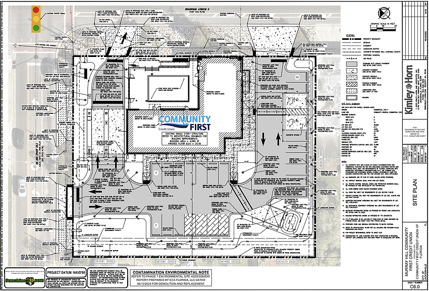
The exception would be for a food truck with outdoor sales and service at the property at 1012 Edgewood Ave. S., where Community First is adapting the former bakery with such features as a front lawn and social area, a community room and architectural features not usually seen at the credit union’s branches.
A Community First spokesperson said the food truck would be a permanent part of the project and would not leave the property. The spokesperson said the credit union worked with Hudson Trailer Co. of Jacksonville to design the truck, which will serve as a working kitchen.

In December 2025, two months after buying the building, Community First applied for a permit for the renovation at an estimated project cost of $3 million.
Auld & White Constructors LLC of Jacksonville is the contractor for the renovation of the Murray Hill branch.
Community First intends to demolish 1,086 square feet of the primary building and renovate 4,628 square feet, adding drive-thru lanes, an outdoor plaza and other site improvements.
Community First Credit Union of Florida bought the 0.71-acre site and structure Oct. 11, 2024, for $1.675 million.
Restaurateur John Valentino through Pie High Real Estate Holdings LLC sold the building and grounds to Community First. He bought the property for $700,000 in 2016, the year Edgewood Bakery closed.
The property had been the Edgewood Bakery since 1947.
Jacksonville Jaguars owner Shad Khan’s company Stache Investments bought the property in 2015 before selling it to Valentino.