Publix seeks build-out permit for Seven Pines supermarket

The Lakeland-based grocery chain is preparing to anchor a Regency Centers retail village at southeast Butler Boulevard and I-295.


Publix is preparing to build-out its supermarket in The Village at Seven Pines at southeast Butler Boulevard and Interstate 295.
Publix is preparing to build-out its supermarket in The Village at Seven Pines at southeast Butler Boulevard and Interstate 295.
  • Columnists
  • Mathis Report
  • Share

Publix is preparing to build-out its supermarket in The Village at Seven Pines, the Regency Centers retail development at southeast Butler Boulevard and Interstate 295.

The city is reviewing a permit application for the estimated $1.8 million build-out for the 52,030-square-foot supermarket under development at 12235 Dairy Ridge Road. The site is off Stillwood Pines Boulevard, which is at southwest Butler and Kernan boulevards.

Jacksonville-based Regency Centers, a national owner, operator and developer of shopping centers, paid $8.47 million for land in September to build the shopping village within the larger Seven Pines community.

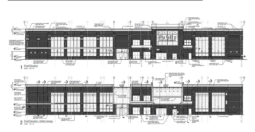
Elevation drawings of the 52,030-square-foot, two-story Publix supermarket planned in Seven Pines.
Elevation drawings of the 52,030-square-foot, two-story Publix supermarket planned in Seven Pines.

The grocery store will have a mezzanine level with tables and chairs for in-store dining seating.

England-Thims & Miller Inc. of Jacksonville is the civil engineer. Cuhaci Peterson Architects of Orlando is the architect.

Regency has said it will start construction on The Village at Seven Pines in the first quarter of 2026 and open the first retail stores in 2027.

Publix in The Village at Seven Pines is planned at 12235 Dairy Ridge Road.
Publix in The Village at Seven Pines is planned at 12235 Dairy Ridge Road.

Regency Centers and former landowner Sawmill Timber LLC said previously The Village at Seven Pines will be the primary retail component of the master-planned Seven Pines community.

Regency Centers will develop, own and operate the retail center, which will include dining, health/wellness, soft goods and personal services.

A rendering of The Village at Seven Pines shopping center planned in the Seven Pines master-planned community.
A rendering of The Village at Seven Pines shopping center planned in the Seven Pines master-planned community.

On Aug. 1, the city issued a permit for Regency Centers to clear 22.39 acres at 11870 Stillwood Pines Blvd. Regency then announced it will move its headquarters from Downtown into the suburban retail development and that Publix Super Markets Inc. will be the grocery anchor.

Regency Centers’ leasing brochure says the center will be 250,000 square feet. The retail portion will be at least 182,000 square feet.

The Seven Pines residential and commercial development at southeast Butler Boulevard and Interstate 295.
The Seven Pines residential and commercial development at southeast Butler Boulevard and Interstate 295.

The master site plan for The Village at Seven Pines showed the unidentified anchor, later confirmed as Publix, with a 2,100-square-foot liquor store adjacent to 22,000 square feet of shops for other tenants.

Seven Pines is about 1,000 acres. When complete, it will have about 1,600 single-family homes, apartments and more than a million square feet of commercial and retail space.

 

Sponsored Content

×

Special Offer: $5 for 2 Months!

Your free article limit has been reached this month.
Subscribe now for unlimited digital access to our award-winning business news.