The city issued a permit Nov. 18 for the almost $1.62 million conversion of the Monument Road Winn-Dixie into an Aldi Inc. discount grocer.
It is one of the 13 Southeastern Grocers stores identified for conversion.
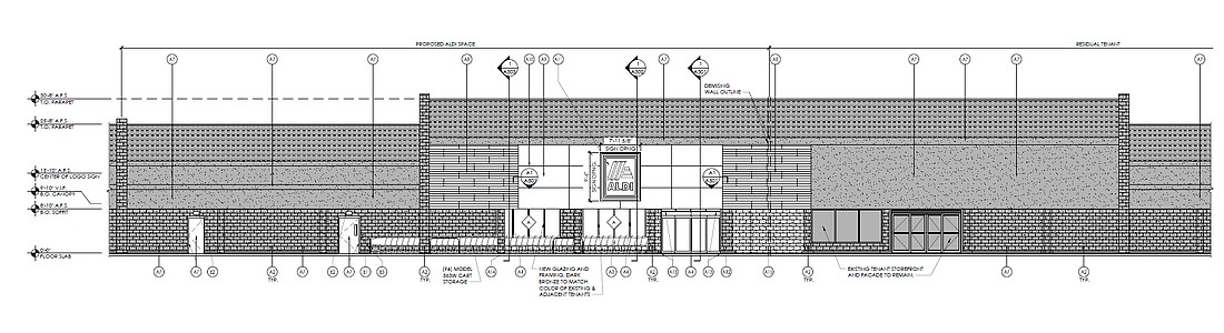
WH Bass Inc. of Johns Creek, Georgia, is the contractor for the project to renovate about 24,211 square feet of the roughly 48,000-square-foot store for the Aldi’s discount format at 1531 Monument Road.
The city issued a permit Nov. 17 for WH Bass to demolish portions of the exterior and interior space at a project cost of $102,860.
The remaining space will be available for another tenant. Aldi stores are about half the size of Winn-Dixie stores, which generally leaves additional space for landlords to lease.
The store is in Monument Pointe Plaza at southwest Monument and St. Johns Bluff roads in East Arlington.
The site is across St. Johns Bluff Road from Jacksonville Executive at Craig Airport.
ADP Engineering & Architecture of Victor, New York, is the architect.

The city issued a permit Aug. 1 for Prime Sign Installation LLC to replace the existing Winn-Dixie signage with a new Aldi sign at a project cost of $2,000.
Brochures for Monument Pointe Plaza show “Aldi Coming Soon” at the Winn-Dixie, which closed in August.
The landlord is Isram Realty & Management Inc.
The Duval County Property Appraiser shows the 48,199-square-foot supermarket was built in 1985.
Other plaza tenants include Vito’s Pizza. Goodyear Tires operates on the western end of the property.
The conversions so far appear to be at least doubling Aldi’s presence in Northeast Florida. Aldi had 13 stores before the first SEG conversion.
Aldi Inc. continues to convert the Winn-Dixie and Harveys Supermarket stores it bought on its path to expanding its discount grocery format throughout the Southeast.

Aldi has not announced when all of the converted stores will reopen.
In March 2024, Aldi bought Southeastern Grocers Inc., which operated about 400 Winn-Dixie and Harveys Supermarkets in Alabama, Florida, Georgia, Louisiana and Mississippi.
Aldi then started converting some stores to its banner.
A group led by former Southeastern Grocers LLC CEO Anthony Hucker bought 170 stores back from Aldi this year and said it would continue to operate others targeted for an Aldi conversion until they closed for the construction.
The U.S. headquarters for Aldi is in Batavia, Illinois.
Aldi has about 2,400 U.S. stores and said the Southeastern Grocers acquisition was part of a plan to add 800 stores nationwide by 2028 through new openings and store conversions.
Stores.Aldi.US shows 17 stores in Clay, Duval, Nassau and St. Johns counties.
Southeastern Grocers has confirmed that the Clay, Duval and St. Johns county stores, most of them Winn-Dixies, that were or will be closed for renovation include one each in Clay and Nassau counties; three in St. Johns County; and eight in Duval County.
Southeastern Grocers
Southeastern Grocers LLC announced Oct. 21 it is shedding most of its stores outside Florida to focus on its home state.
It said it has “reached agreements or is advancing plans with multiple grocers,” which include 32 Winn-Dixie stores and eight Harveys Supermarkets, in Alabama, Georgia, Louisiana and Mississippi.
The company didn’t say how many stores it would close or sell. It did say that the store closings are expected to be completed by year-end, with all banner transitions anticipated by early 2026.
This week, Gulf Coast grocer Rouses Markets posted a report on its website that it agreed to buy 10 Winn-Dixie locations in Louisiana and Mississippi from Southeastern Grocers with a changeover to Rouses Markets expected to be complete in early 2026.
Southeastern Grocers announced Oct. 21 that in early 2026 it would be renamed The Winn-Dixie Co.
It also is moving its headquarters from Prominence Office Park in Baymeadows to Edgewood Court in Westside, where Winn-Dixie was long based.
Meredith Hurley, senior director of communications and community for Southeastern Grocers, said Nov. 4 that associates “are in the process of moving to the Edgewood location. Jacksonville will continue to serve as our Store Support Center for at least the interim as we thoughtfully evaluate long-term options throughout the Florida markets we serve.”
The move comes as the Duval County School Board voted to sell the Duval schools’ riverfront headquarters along the Downtown Southbank and buy the Baymeadows building at 8928 Prominence Parkway.
Southeastern Grocers moved to the Prominence building in 2016. The lease expires this year.
The Edgewood Support Center is at 5050 Edgewood Court, where Winn-Dixie Stores Inc. was headquartered for decades before it became part of SEG. The property is at southwest Edgewood Avenue South and West Beaver Street.
SEG leases that property.