This report was updated Nov. 20 with the name of contractor.
Hazel Street Industrial intends to extend its Jacksonville strategy into Westlake Industrial Park by developing what it calls Pritchard Park to focus on small-bay users.
South Florida-based Hazel Street Industrial expects to buy the 14.95-acre Westlake Parcel 5 by late January, start construction in March 2026 and complete the project in the first quarter of 2027.
Hazel Street Industrial, which rebranded from Hazel Street Capital, recently developed Park 295 Landing, which was completed this fall in Northwest Jacksonville. The 101,138-square-foot building is divided among four spaces and has signed its first tenant.
“We are seeing a lot of velocity with our Park 295 property,” said Managing Partner James Ryan.

“There’s been a slowdown generally, but we have a strong conviction in Jacksonville.”
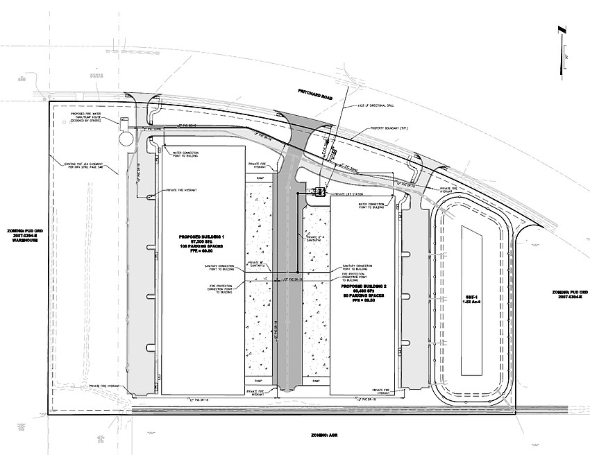
Ryan said Nov. 17 that the two Pritchard Park buildings, totaling 157,680 square feet, will comprise a 97,200-square-foot building for three tenants and a 60,480-square-foot structure for four tenants.
The larger building will be divided into two 30,000-square-foot spaces and one almost 40,000-square-foot bay. It will be targeted to manufacturers, assembly and logistics tenants. The structure will have a thicker floor slab and higher clear heights.
The smaller building will comprise four roughly 15,000-square-foot small bays for small manufacturers, logistics and services tenants.
Evans General Contractors will be the contractor.
Westlake Industrial Park is dominated by larger buildings, including Southeast Toyota Distributors and a BJ’s Wholesale Club distribution center.
Westlake is along Pritchard Road, about 4 miles west of Interstate 295, which connects to Interstates 95 and 10, Jacksonville International Airport and the Port of Jacksonville.
The Hazel Street site is across Pritchard Road from a Georgia-Pacific warehouse.
Ryan said the Hazel Street project is in demand for the small-bay size range.

Swift Transportation Co. of Arizona is selling the vacant land, which is south along Pritchard Road and east of Directors Road. Swift Transportation, of Phoenix, paid $1.185 million for it in November 2018.
Ryan said another group had the land under contract from Swift Transportation but didn’t close on it.
“We stayed close to it and picked it up rather quickly,” he said.
Ryan said Hazel Street will buy the property with “a preexisting partner” that he was not able to discuss.
He said Kyle Fisher, first vice president of the CBRE commercial real estate company, will represent Hazel Street as the landlord in lease negotiations.

Ryan said he could not provide an estimated investment cost of the project.
City utility JEA issued a service availability letter in September to Hazel Street at a Miami Beach address. The state Division of Corporations lists the headquarters in Coral Gables. England-Thims & Miller Inc. of Jacksonville is the civil engineer.
Hazel Street Industrial is developing Park 295 Landing with investment partner Faropoint of Hoboken, New Jersey.
Faropoint is a real estate investment manager. Hazel Street builds, acquires and operates industrial real estate in Florida markets.
Hazel Street Capital LLC and Faropoint paid $1.743 million Nov. 1, 2024, for the Park 295 Industrial Park property.
Through FP-Hazel Park 295 Owner LP, Hazel Street and Faropoint bought 7.58 acres from Northpoint Development LLC of Kansas City, Missouri.
NorthPoint Development is the developer of Park 295 Industrial Park. It sold a parcel to Hazel Street through NP Jacksonville Industrial LLC.
Newmark Phoenix Realty Group of Jacksonville said in August it completed its first tenant lease at the speculative warehouse.
Senior Vice Presidents Richard Antczak and Bryan Bartlett at Newmark Phoenix Realty Group said Pas Reform North America pre-leased 16,928 square feet of space in the building at 2555 Ignition Drive at southwest I-295 and Duval Road.
Antczak said Nov. 17 that three units remain available for lease from 25,295 to 33,636 square feet.
It is east of the four completed buildings in Park 295 Industrial Park that Northpoint developed.
In November 2024, co-founder and Managing Partner Robert Fitzgerald said Hazel Street was under contract on a few other properties in the state and was assessing more in Jacksonville.
“We are absolutely assessing more sites in Jacksonville and hopefully this is the start of a long-term development process throughout Jacksonville,” he said.