Ahead of the holidays, St. Johns Town Center wants to expand parking at its northwest Butler Boulevard and Interstate 295 property in South Jacksonville.
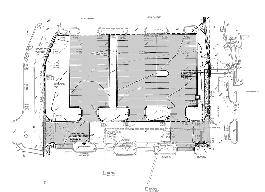
The city is reviewing a permit application for an estimated $470,000 site-development project to add 71 spaces on about an acre of vacant land at 4831 Village Shops Way, which is between two paved lots.
The lot is east behind the Lululemon sportswear store and connects paved lots between RH - formerly known as Restoration Hardware - and Dick’s Sporting Goods. Permitting refers to an expansion at the Restoration Hardware site.
The site is at the southeastern end of the center.

Kimley-Horn and Associates of Jacksonville is the civil engineer and landscape architect. ShayCore LLC is the contractor.
Simon Property Group of Indianapolis is the property owner.
The 1.4 million-square-foot St. Johns Town Center comprises more than 175 stores, including first-to-market retailers, such as Gucci, Marc Jacobs, Mayors, Swarovski, Tommy Bahama, Tory Burch and other stores and restaurants.
St. Johns Town Center opened its first phase March 18, 2005, the second Oct. 26, 2007, and the third Oct. 10, 2014.
The second phase, which opened just before the 2007-09 recession, brought in upscale merchants like Tiffany & Co., Louis Vuitton and Coach.
The third phase was anchored by Nordstrom, which opened a two-level, 124,000-square-foot department store.
The fourth phase was designed among four parcels.
Two of those are built – RH Jacksonville, which opened Nov. 19, 2021, and the AC Hotel Jacksonville St Johns Town Center, which opened in March 2024.