This report was updated Nov. 11 to include a permit application for a fuel canopy.
Two weeks after building-permit review began for Parker’s Kitchen in Westside, the city received an application for construction of one of the gas stations and convenience stores in North Jacksonville.
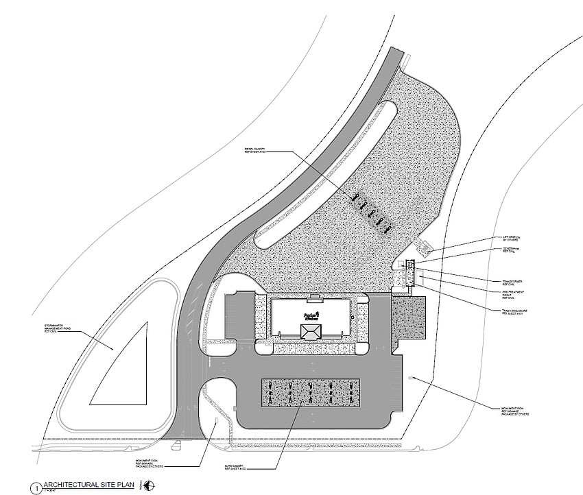
The Savannah, Georgia-based chain wants to build a 7,127-square-foot location at 11205 Alta Drive at an estimated project cost of $2.52 million.
The undeveloped land is north of Interstate 295, east of Alta Drive and south of Faye Road. It is south of the Alta Plaza at Dunn’s Creek Crossing shopping center.
HFA-AE Ltd. Inc. of Bentonville, Arkansas, is the applicant. It is an architecture and engineering firm.
The city also is reviewing a permit for a fuel canopy at a project cost of $200,000.
Parker’s Kitchen owns the site through DPC-FL LLC, which paid $5.3 million for the land in July 2023.

The West Jacksonville site in review is at 7481 Wilson Blvd. The vacant parcel is at northeast Wilson Boulevard and Old Middleburg Road.
The 4,985-square-foot store is planned on a 1.87-acre site at an estimated construction project cost of $2.2 million.
DPC-FL LLC bought the site in February 2024 for $1.8 million.
They are two of 10 identified sites in Northeast Florida for the chain that features Southern comfort food.
Parker’s Kitchen has at least 102 stores in Georgia and South Carolina and is expanding into Jacksonville and into new markets in South Carolina.
The closest location to Jacksonville that is open is 32 miles north in Kingsland, Georgia.

Northeast Florida expansion
Parker’s Kitchen said in December 2024 that it expected to open at least four gas station and convenience stores in Northeast Florida by the third quarter of 2026. It said it was actively working on several more locations but that it was too early to publicize them.
The company said the first four are:
• 7481 Wilson Blvd. at Old Middleburg Road in West Jacksonville in Duval County.
• 11205 Alta Drive north of Interstate 295 in North Jacksonville in Duval County.
• Blanding and Tanglewood boulevards in Orange Park in Clay County.
• 76010 William Burgess Blvd. in Wildlight in Yulee in Nassau County.

In total, there appear to be five in consideration in Duval County; three in Clay; and one each in Nassau and St. Johns.
Parker’s Kitchen employs nearly 1,800 people throughout Georgia and South Carolina.
Founder and CEO Greg Parker opened the first store in Midway, Georgia, in 1976.