A futuristic Baymeadows building developed in 1983 for AT&T American Transtech is in permitting review for redevelopment that includes demolition and new construction.
AT&T American Transtech developed the campus to handle shareholder services for the court-ordered breakup of AT&T, a monopoly that operated the entire U.S. phone system.

Transtech built four three-story connected buildings totaling 353,269 square feet and a two-story, 106,275-square-foot computer/telecom data center on 28.29 acres at 8000 Baymeadows Way. The square footage totals almost 460,000 square feet.
The company hired 1,300 employees to handle the task of divvying up shares of the seven new companies to AT&T stockholders.
After several ownership transformations through sales, the 43-year-old structure is now in line for demolition to be developed into a warehouse park.
The new project
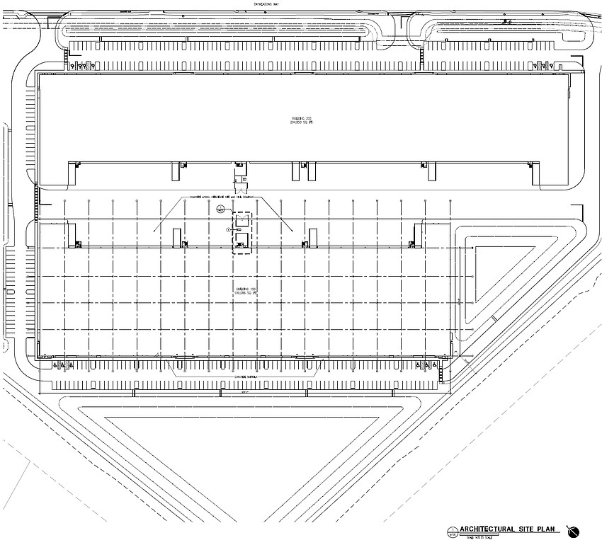
The city is reviewing permit applications for Foundry Commercial Group of Orlando to build speculative warehouses totaling 403,936 square feet of space at a combined estimated project cost of $16.83 million.
The property is west of Interstate 95 and north of Baymeadows Road within the Deerwood Center office park.

While Foundry is listed on plans as the owner and developer for “Baymeadows Way Industrial,” it has not closed on a purchase of the property. Foundry could not be reached for comment.
Plans show Building 100 at 199,086 square feet and an estimated project cost of $8.04 million and Building 200 at 204,850 square feet at an estimated $8.79 million.
C4 Architecture LLC of Orlando is shown as the architect and the mechanical and plumbing engineer.
Langan Engineering of Jacksonville is the civil engineer.

The city received civil engineering plans in December.
Plans show the properties removed and replaced by the two warehouses with other site work that includes detention pond infrastructure.
The permit applications indicate that site work will be permitted separately.
Foundry Commercial is a full-service commercial real estate company that works in office, industrial, retail, multifamily, health care, religious and not-for-profit properties and clients.
It says it focuses on Sunbelt markets that include Jacksonville.

AT&T American Transtech
AT&T American Transtech launched a wave of major companies that located back-office operations in Jacksonville and helped to solidify the development of office parks to house large employers.
In early 1998, AT&T sold the business to Cincinnati Bell Inc., which added it to its customer service division called Matrixx Marketing. Later that year, Cincinnati Bell spun off Matrixx and another division into a new public company called Convergys Corp.

In 2018, Convergys Corp. was bought out by California-based Synnex Corp., which combined the business with its customer services subsidiary, Concentrix.
Concentrix had operated at the Baymeadows Way property, whose ownership is listed as Convergys Customer Management Support Inc. and Concentrix CVG Customer Management Support Inc., both in Cincinnati.
The building now appears to be largely vacant.
Jones Lang LaSalle Americas Inc. has been marketing the property, saying Concentrix plans to vacate six to 12 months after the disposition of the asset, leaving the site available for development or an owner-user.
The offering says the total site has 32.2 acres across four parcels.