With the land in hand, Hazel Street Industrial is starting work toward clearing a site in Westlake Industrial Park to develop what it calls Pritchard Park to focus on small-bay users.
Miami Beach-based Hazel Street has applied to the city for site clearing at 9770 Pritchard Road. England-Thims & Miller Inc. of Jacksonville is the civil engineer.
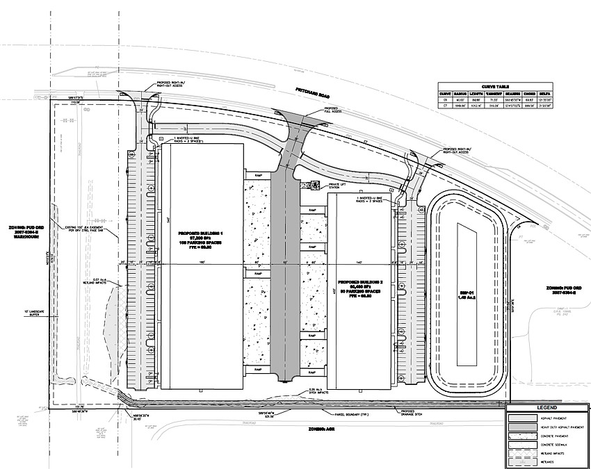
The permit application specifies clearing, grubbing, earthwork and construction of a stormwater management facility on 14.19 acres.
Through Pritchard Road Owner LP, Hazel Street paid $2.3 million Jan. 21 for the undeveloped 14.95-acre site along Pritchard Road, east of Directors Roads.
Hazel Street builds, acquires and operates industrial real estate in Florida markets.

Westlake is along Pritchard Road, about 4 miles west of Interstate 295, which connects to Interstates 95 and 10, Jacksonville International Airport and the Port of Jacksonville.
Hazel Street Industrial said in November it expected to buy the Westlake Parcel 5 by late January, start construction in March 2026 and complete the project in the first quarter of 2027.
Hazel Street bought the land from Swift Transportation Co. of Arizona LLC.
Hazel Street Industrial, which rebranded from Hazel Street Capital, recently developed Park 295 Landing, which was completed in fall 2025 in Northwest Jacksonville. The 101,138-square-foot building is divided among four spaces.

“We are seeing a lot of velocity with our Park 295 property,” said Managing Partner James Ryan in November.
“There’s been a slowdown generally, but we have a strong conviction in Jacksonville.”
Ryan said the Hazel Street project is in demand for the small-bay size range.
He said Nov. 17 that the two Pritchard Park buildings, totaling 157,680 square feet, will comprise a 97,200-square-foot building for three tenants and a 60,480-square-foot structure for four tenants.
The larger building will be divided into two 30,000-square-foot spaces and one almost 40,000-square-foot bay. It will be targeted to manufacturers, assembly and logistics tenants. The structure will have a thicker floor slab and higher clear heights.
The smaller building will comprise four roughly 15,000-square-foot small bays for small manufacturers, logistics and services tenants.
Evans General Contractors will be the contractor.
Westlake Industrial Park is dominated by larger buildings, including Southeast Toyota Distributors and a BJ’s Wholesale Club distribution center.
The Hazel Street site is across Pritchard Road from a Georgia-Pacific warehouse.
Ryan said Hazel Street would buy the property with “a preexisting partner” that he was not able to discuss.
The deed recorded Jan. 26, 2026, shows the address of Pritchard Road Owner LP as that of Faropoint of Hoboken, New Jersey. Faropoint is an industrial real estate asset manager that has partnered with Hazel Street at Park 295 Landing.
Ryan said Kyle Fisher, first vice president of the CBRE commercial real estate company, will represent Hazel Street as the landlord in lease negotiations at Pritchard Park.
Hazel Street Capital LLC and Faropoint paid $1.743 million Nov. 1, 2024, for the Park 295 Industrial Park property.
Through FP-Hazel Park 295 Owner LP, Hazel Street and Faropoint bought 7.58 acres from Northpoint Development LLC of Kansas City, Missouri.
NorthPoint Development is the developer of Park 295 Industrial Park. It sold a parcel to Hazel Street through NP Jacksonville Industrial LLC.