- March 31, 2026 | 12:09 p.m.
The June expects soft opening this summer
Live Oak Contracting is renovating the private Downtown NorthCore club in the historic Federal Reserve Building.
Live Oak Contracting is renovating the private Downtown NorthCore club in the historic Federal Reserve Building.
MG Orender will lead the group after Rick Morales III was dropped from potentially taking over as chair.
Keith and Catherine Jones want to start the Dunns Creek Crossing restaurant with breakfast and lunch, then reopen as a sports bar at night.
After serving as senior counsel for Florida Blue, he is returning to commercial litigation.
Decisive factors include both companies’ “rich history, considerable brand equity, and established market presence.”
San Diego-based Realty Income paid $8.4 million for the property at 10207 Buckhead Branch Drive.
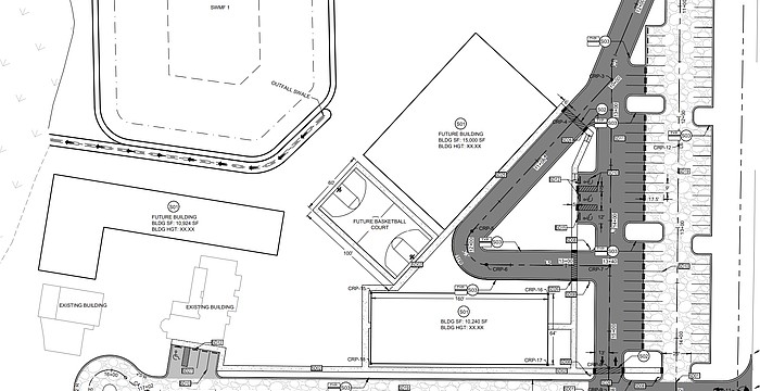
St. Johns County is reviewing a rezoning request for the new school building at 635 S. Holmes Blvd.
There’s a reason “they grow up so fast” is an often repeated adage.
March 30, 2026 | 3:48 p.m.
March 30, 2026 | 2:44 p.m.
March 27, 2026 | 5:00 p.m.
March 26, 2026 | 7:16 p.m.